HETERENKerklaan 73

Vraagprijs €389.000,- k.k.
Verkocht
KENMERKEN
Woonhuissoort
Eengezinswoning
Woonhuistype
Hoekwoning
Bouwjaar
2000
Energieklasse
A
LOCATIE
Provincie
GELDERLAND
Plaats
HETEREN
Postcode
6666 HN
Straat
Kerklaan 73
  • Omschrijving
  • Foto's
  • Kenmerken
  • Stel een vraag
  • Locatie
Omschrijving

HETEREN
Kerklaan 73

Moderne, goed onderhouden UITGEBOUWDE HOEKWONING (2000) bestaande uit 3 volledige woonlagen. De begane grond is voorzien van vloerverwarming en biedt plaats aan een diepe en tuingerichte woonkamer, een halfopen moderne keuken v.v. alle wenselijke inbouwapparatuur en een praktische trapkast. Op de 1e verdieping tref je 3 slaapkamers met rolluiken, waarvan de masterbedroom is voorzien van een walk-in-closet en een badkamer met onder andere een ligbad én douche. De 2e verdieping is aanzienlijk vergroot door de brede dakkapel en biedt plaats aan een 4e slaapkamer en een voorzolder met onder meer de witgoedaansluitingen. De woning is compleet met maar liefst 16 zonnepanelen.

De bredere tuin door de hoekligging is gelegen op het oosten en geniet van veel zon. De tuin is verzorgd aangelegd met stevige schuttingen met betonpalen, een houten schuur welke is voorzien van elektra en een sfeervolle VERANDA waar je heerlijk kunt genieten. Naast de woning is een achterom aanwezig. De straat is groen aangekleed waarbij de ligging in het dorp zeer gunstig met winkelvoorzieningen en de uiterwaarden op loopafstand.

Quote van de makelaar: “Deze woning heeft het complete plaatje te bieden. Met zowel een uitbouw van maar liefst 3 meter én een dakkapel geniet je hier van veel extra woonoppervlak waardoor je geen ruimte tekort zal komen. Daarbij heeft de woning veel pluspunten waaronder 16 zonnepanelen, rolluiken en zonwering. Zelfs de tuin sluit aan in het plaatje, zie jij jezelf hier al lekker zitten onder de veranda?”.

WOONKAMER
Zoals gezegd is de woonkamer voorzien van een riante uitbouw van wel 3 (!) meter waardoor de ruimte aanzienlijk is vergroot. Hierdoor is er ook meer dan voldoende ruimte voor een lekkere hoekbank en een eettafel. Hierdoor hoeft de eettafel niet meer in de keuken te staan. Openslaande tuindeuren zorgen voor veel lichtinval en een zicht op de achtertuin. Een fijn detail is hier dat er een extra hal/tochtportaal is geplaatst met een 2e achterdeur. Mocht je bijvoorbeeld in de winterdag de achterdeur gebruiken, dan verlies je op deze manier zo min mogelijk warmte. Ook heb je hier een plek om jassen en schoenen uit het zicht op te bergen. Op de vloer ligt een pvc-vloer welke is voorzien van vloerverwarming.

KEUKEN
De keuken vinden we terug aan de voorzijde waarbij je een fijn uitzicht hebt op de straat en de tegenovergelegen, vrijstaande woningen. Het keukenblok is geplaatst in een hoekopstelling waardoor je geniet van veel werkruimte. Alle inbouwapparatuur is aanwezig, zijnde een 5-pits gaskookplaat, een afzuigkap, een vaatwasser, een koel/vriescombinatie en een combi-oven/magnetron. Bij de keuken is zelfs plaats voor een 2e eettafel. Tussen de keuken en woonkamer is een trapkast aanwezig.

1e VERDIEPING
Via de rechte trapopgang in de hal komen we op de 1e verdieping terecht. Hier biedt de overloop toegang tot 3 slaapkamers en de badkamer. De grootste slaapkamers is over de volle breedte van de woning gesitueerd waardoor dit een ware masterbedroom is. Een leuk detail is dat hier een scheiding is gemaakt tussen een slaapgedeelte en de kastenwand. Hierdoor is het effect van een walk-in-closet gecreëerd. Aan de achterzijde van de woning zijn nog 2 (kinder)kamers gelegen.

BADKAMER
De badkamer van deze woning is zeer compleet te noemen. Al het wenselijke sanitair is aanwezig, zo tref je hier een ligbad én een separate douche. Uiteraard is er ook een 2e toilet (zwevend geplaatst) en een wastafelmeubel aanwezig. Door de lades in het meubel heb je handige opbergruimte. Een handdoekradiator maakt de ruimte compleet. Om te ventileren is er mechanische ventilatie aanwezig.

2e VERDIEPING
De 2e verdieping van deze woning is zeer verrassend te noemen. Een maximaal breed dakkapel is geplaatst om de leefruimte aanzienlijk te vergroten. Op deze manier is er een extra, zeer volwaardige slaapkamer ontstaan. Op de voorzolder tref je knieschotten waarachter veel opbergruimte schuilt. Ook zijn hier de witgoedaansluitingen, de opstelling van de cv-ketel (2023) en de mechanische ventilatie-unit (2021) geplaatst.

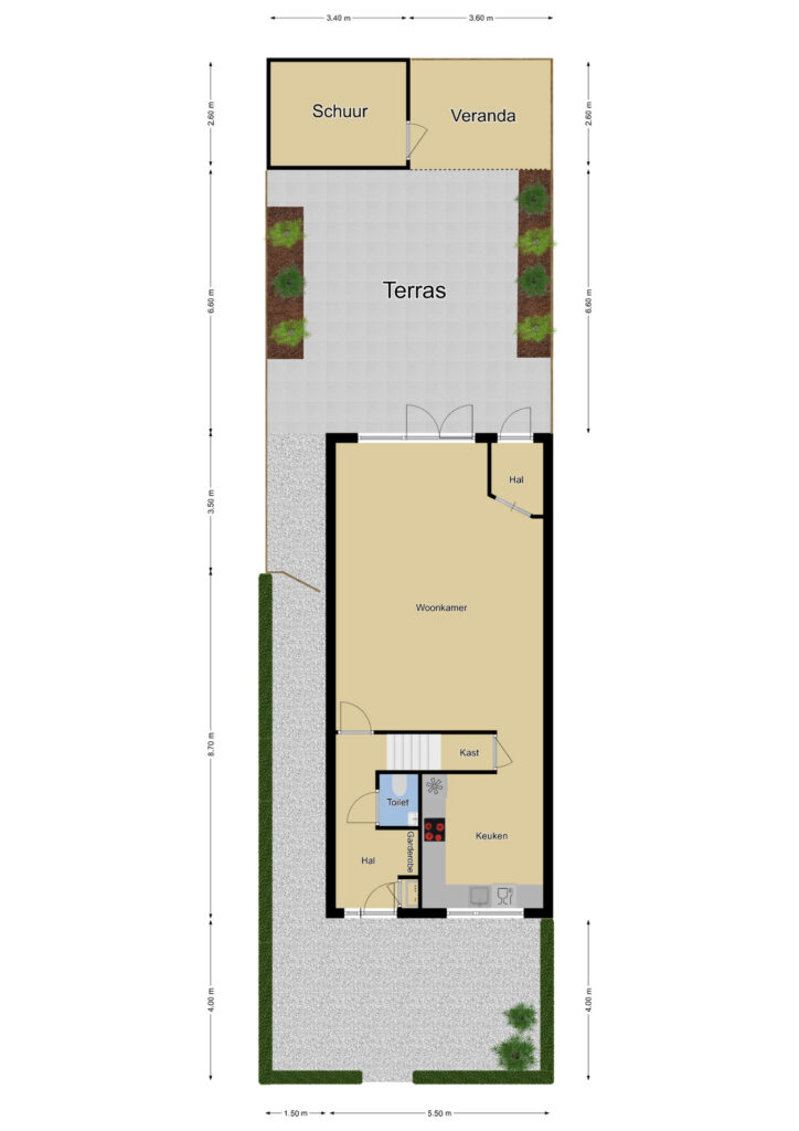
ACHTERTUIN MET VERANDA
Bij een verzorgde woning hoort ook een verzorgde achtertuin. Doordat dit een hoekwoning betreft is de tuin breder dan gemiddeld. Hierdoor heb je niet alleen meer ruimte in de tuin, ook heb je een achterom langs de woning op. Mede door de breedte blijft hier ondanks de riante uitbouw een ruime achtertuin over. De tuin is voorzien van een groot terras waar je met gemak meerdere zithoeken creëert. Aan de zijkanten zijn groenborders geplaatst waar diverse planten en bomen de tuin een groene uitstraling geven. Achter in de tuin staat een houten schuur welke is voorzien van een elektra-aansluiting. Aan deze schuur is een veranda gebouwd waardoor je een fijne, beschutte zithoek hebt.

KERKLAAN
Deze straat doet zijn naam eer aan aangezien de straat een echte laan is met bomen en groenstroken. De straat is zeer ruim opgezet en is dan ook één van de leukste straten van de nog jonge woonwijk Melkweide. De ligging is gunstig aangezien er tegenover de woning niet gebouwd is. Je geniet daardoor een vrij uitzicht zonder inkijk. Parkeren kan voor de deur waardoor je nooit ver hoeft te lopen. Halverwege de straat is een speeltuin aangelegd. Het is dan ook een gezellige, kindvriendelijke woonwijk met veel jonge gezinnen.
Noemenswaardig is dat er op loopafstand een geheel nieuw recreatiegebied is aangelegd. Aan de andere kant van de dijk in de uiterwaarden van de Rijn tref je een recreatieplas waar je kunt geniet van de rust, vrijheid en natuur.

HETEREN aan de Rijn
In de dorpskern van Heteren vinden veel ontwikkelingen plaats. In de afgelopen jaren is er ruimte gemaakt voor een levendig ‘dorpshart’. Begin dit jaar is het nieuw dorpshart opgeleverd met meer winkels en een centrale ‘huiskamer’ (met bibliotheek) als ontmoetingsplek voor het dorp. Deze bibliotheek is zelfs genomineerd tot de beste bibliotheek van Nederland. Ook is er in het nieuwe dorpshart gedacht aan horeca met o.a. een lekkere pizzeria en een gezellige bistro. De ambitie is om maandelijks diverse activiteiten in het Hart van Heteren te laten plaatsvinden. In het voorjaar van 2024 is het nieuwe dorpshart feestelijk geopend. Voor de dagelijkse boodschappen kun je terecht bij de Jumbo. Op loop/fietsafstand vind je ook 3 basisscholen en een zalencentrum. Ben je van het wandelen (met een hond), dan loop je vanuit de voordeur binnen enkele minuten het recreatiegebied ‘de Hetersche Waarden’ in. In de uiterwaarden van de Rijn zijn strandjes en wandelpaden aangelegd.

CENTRAAL GELEGEN IN DE REGIO
Heteren is een dorp gelegen in het hart van de Gemeente Overbetuwe. Het heeft een centrale ligging met als directe uitvalswegen de A50 richting Arnhem/Ede of Nijmegen/Den Bosch of de A15 richting Tiel/Bemmel. Overigens leiden er meerdere wegen naar Arnhem, namelijk via de dijk of via de nieuwe provinciale weg, de N837. Vanwege haar centrale ligging is er in de afgelopen jaren een modern industrieterrein gerealiseerd met toonaangevende bedrijven waaronder distributiecentrum Kruidvat en Porsche Gelderland. Ook is er een McDonalds-vestiging. Doordat deze woning een gunstige ligging en ontsluiting in het dorp heeft, ben je snel het dorp uit en begeef je je binnen 3 tot 4 autominuten op de snelweg A50.

INDELING
Begane grond:
Hal/entree met meterkast, garderobenis, toilet met fonteintje
Uitgebouwde woonkamer met openslaande tuindeuren
2e Hal met achterdeur
Halfopen keuken met inbouwapparatuur en trapkast
1e Verdieping:
Overloop
Drie slaapkamers
Badkamer met ligbad, doucheruimte, 2e toilet en wastafelmeubel
2e Verdieping:
4e Slaapkamer met dakkapel
Witgoedaansluitingen, cv-ketelopstelling, wastafelmeubel en knieschot bergruimte.

BIJZONDERHEDEN
Instapklare gezinswoning
Verzorgd afwerkingsniveau
16 Zonnepanelen (8 op het oosten en 8 op het westen)
Energielabel A
Volledig geïsoleerd
Vloerverwarming op de begane grond
Uitgebouwde woonkamer (3m uitbouw)
Openslaande tuindeuren
Extra tochtportaal/hal met achterdeur
Ruime keuken in hoekopstelling
Praktische trapkast
4 Volwaardige slaapkamers op de verdiepingen
Badkamer met ligbad én inloopdouche
Maximaal breed dakkapel op de 2e verdieping
Handige voorzolder met o.a. witgoedaansluitingen
Comfortabele achtertuin met groot terras
Tuin breder dan gemiddeld door hoekligging
Veranda achter in de tuin
Houten schuur v.v. elektra
Achterom naast de woning
Gunstige ligging in de wijk
Kindvriendelijke en rustige woonomgeving
Natuurgebied op loopafstand
Heteren heeft een centrale ligging in de regio.

TIP:
Kijk ook eens naar de aanvullende producten op Funda die wij standaard bij al onze woningen koppelen:
– Professionele woonvideo
– Virtuele tour door de woning
– Interactieve plattegronden met tuinindeling.

Deze informatie is door ons zorgvuldig samengesteld. Onzerzijds wordt echter geen enkele aansprakelijkheid aanvaard voor enige onvolledigheid, onjuistheid of anderszins, dan wel de gevolgen daarvan. NVM Consumentenvoorwaarden zijn van toepassing.

+ Lees meer
Kenmerken
Stel een vraag
Locatie

    Gratis waardebepaling van uw woning