RANDWIJKJohan Frisostraat 4

Vraagprijs €465.000,- k.k.
Verkocht
KENMERKEN
Woonhuissoort
Eengezinswoning
Woonhuistype
2-onder-1 kapwoning
Bouwjaar
1998
Energieklasse
A
LOCATIE
Provincie
GELDERLAND
Plaats
RANDWIJK
Postcode
6668 CB
Straat
Johan Frisostraat 4
  • Omschrijving
  • Foto's
  • Kenmerken
  • Stel een vraag
  • Locatie
Omschrijving

RANDWIJK
Johan Frisostraat 4

Moderne, volledig geïsoleerd en energiezuinige 2-ONDER-1-KAPWONING met energielabel A. Tijdens de bouw in 1998 is de beoogde garage ingericht tot (geïsoleerde) hobbyruimte en verlengd met aan de achterzijde een ‘inpandige’ berging.

Deze aantrekkelijke gezinswoning is van alle gemakken voorzien met o.a. een heerlijke woonkamer met erker en houtkachel, een luxe en trendy inbouwkeuken met dubbele terrasdeuren, een hobby/werkkamer op de begane grond (Finse sauna ter overname), op de 1e verdieping 3 volwaardige slaapkamers en een compleet ingedeelde badkamer met o.a. een ligbad én douche. De 2e verdieping biedt ruimte aan een voorzolder en 4e slaapkamer (nieuwe Velux dakvensters). De toiletten zijn zwevend uitgevoerd. Airconditioning in de woonkamer en op de overloop kunnen voor lage energielasten zorgen aangezien er ook 10 zonnepanelen op het dak zijn gelegd. De meeste beglazing is vervangen door HR++ isolatieglas. De aanwezige laadpaal blijft achter. De woning verkeert in een verzorgde en goede onderhoudsstaat waarbij het schilderwerk (binnen en buiten) in 2022 door een schilder is uitgevoerd.

De achtertuin heeft een mooi formaat (13m diep en 9m breed) waarbij meerdere (zonnige) terrassen zijn aangelegd. De tuinaanleg is verzorgd met o.a. 2 houthokken, buitenverlichting, elektra-aansluiting, een watertappunt, een drainafvoer en een beukenhaag op de erfafscheiding. Opvallend is de achterom die langs de woning op loopt. Waar vaak garages tegen elkaar aan zijn gebouwd, staat hier de woning los van de buurwoning. Hierdoor heb je aan de voorzijde ook een comfortabele, bredere oprit met plaats voor 2 auto’s. Bij de voordeur is er een overstek/luifel v.v. inbouwspots.
De woning is gelegen in een rustige en kindvriendelijke woonwijk waarbij speelvoorzieningen om de hoek te vinden zijn.

Quote van de makelaar: “Wat heeft deze woning niet, zouden we bijna willen zeggen? Een veel completere gezinswoning als deze ga je in dit segment niet snel vinden. Deze woning onderscheidt zich niet alleen in luxe en comfort, maar ook in duurzaamheid. Wanneer je bewust omgaat met energieverbruik, dan kun je hier flink op besparen”.

WOONKAMER
De woonkamer heeft een fijn leefklimaat. Dit komt mede door de prettige lichtinval van onder meer de erker aan de voorzijde en het extra zijgevelraam. Op de vloer ligt een mooie parketvloer met rondom een bies. Dit zorgt voor een warme uitstraling. In de koudere wintermaanden kun je de houtkachel gebruiken. In de tuin is voldoende houtopslag aanwezig. In 2022 is er in de woonkamer een airconditioning geplaatst. Deze kan zowel verwarmen als koelen. De voortuin zorgt voor een groene buffer met de straat. Hierdoor zit je relatief vrij. Ook het rustige karakter van de straat draagt bij aan het wooncomfort.

MODERNE INBOUWKEUKEN
Vanuit de woonkamer loop je door naar de keuken aan de achterzijde. Hier vinden we een moderne en trendy hoekopstelling (2018) die is voorzien van alle wenselijke inbouwapparatuur. Denk daarbij aan een vaatwasser, een brede 5-pits inductie kookplaat met afzuiger, een koelkast en een combi-oven/magnetron. Alle inbouwapparatuur is van het merk Bosch. Opvallend is het werkblad van composiet. Onder het ‘zwevende’ werkblad is Led-verlichting aangebracht. Achter de greeploze fronten (met soft-close) vind je veel praktische kastruimte zoals een luxe Le-manslede (uitschuifbare hoekkast) en een verdekte besteklade. Een bovenkast is v.v. een liftdeur. Meerdere inbouwspots, rvs schakelmateriaal en glazen legplanken maken de keuken compleet.

Dubbele tuindeuren zorgen ervoor dat je direct het buitenterras op loopt. Tussen de keuken en de woonkamer is nog een trapkast te vinden. Hier kun je de nodige voorraad en bijvoorbeeld een stofzuiger kwijt.

HOBBYRUIMTE & SCHUUR
Ten tijde van de bouw van deze woning is ervoor gekozen om de beoogde garage direct te verbouwen tot leefruimte. In plaats van garagedeuren is er een grote glaspui (tot aan de vloer) geplaatst. De muren en het platte dak zijn geïsoleerd, evenals de beglazing. En doordat er ook centrale verwarming is aangelegd is dit een heerlijke (leef)ruimte die voor meerdere doeleinden geschikt is. We hebben het een hobbykamer genoemd, maar het zou ook een prima werkkamer kunnen zijn. In de huidige setting is er een soort van ‘wellnesshoekje’ met Finse sauna gecreëerd. Deze sauna wordt overigens ter overname aangeboden.

Bij de bouw van de woning is dit gedeelte gelijk verlengd waardoor er ruimte ontstond voor een ‘inpandige’ schuur. Deze is immers van binnenuit toegankelijk. Deze berging/schuur is v.v. elektra en geeft toegang tot de achtertuin. Dit is een prima stalling voor (elektrische) fietsen.

1e VERDIEPING
Via de hal en trapopgang bereiken we de 1e verdieping. Opvallend is het grote zijgevelraam die voor een aangename lichtinval zorgt. Een doorlopende laminaatvloer op de overloop schakelt 3 volwaardige slaapkamers met elkaar. Elke kamer is praktisch in te delen en met respectievelijk 12m2, 8m2 en 8m2 zit er geen kleine kamer tussen. De wanden zijn glad afgewerkt en daardoor eenvoudig in de gewenste kleur te sausen. De ramen zijn v.v. horren waardoor insecten geen kans krijgen. En niet te vergeten de airconditioning op de overloop waardoor je in de zomers de kamers ook lekker koel kunt houden.

COMPLETE BADKAMER
De badkamer is eveneens ruim opgezet en daar is dankbaar gebruik van gemaakt. Het sanitair bestaat uit een ligbad, een separate douchecel, een 2e (zwevend) toilet en een breed wastafelmeubel. Dit meubel is v.v. handige ladekorven waar je de nodige toiletspullen in kunt opbergen. Boven het wastafelmeubel hangt een grote en verwarmbare spiegel. Spotverlichting maakt het plaatje compleet. Een raam zorgt voor de nodige lichtinval en ventilatiemogelijkheid. Ventileren kan overigens ook middels de mechanische ventilatie (MV).

2e VERDIEPING
Een 4e volwaardige slaapkamer vinden we op de 2e verdieping. Deze woonlaag is opgedeeld waardoor er zowel een voorzolder als een slaap/werkkamer is ontstaan. Een tiener zal blij worden van de ruimte (ca. 8m2) waarbij een groot dakvenster (Velux) voor veel lichtinval zorgt. Het oppervlak is gemeten vanaf 1,5m hoogte waardoor de kamer eigenlijk nog groter is. Overigens zijn er onder de schuine kanten knieschotten t.b.v. opbergmogelijkheden aangebracht.

Ook de voorzolder heeft een nieuw Velux dakvenster gekregen. Beide dakvensters (ook op de slaapkamer) zijn v.v. verduisteringsschermen en rolhorren. Het algehele afwerkingsniveau is dan ook (tot in de nok) verzorgd te noemen. Ook hier vinden we knieschot opbergruimte alsmede een vaste kastenwand. Achter de deurtjes vindt je de CV-ketel en MV-unit terug. Erg handig is het werkblad waar je de wasmachine en wasdroger onder kunt schuiven, dak doorvoer is aanwezig. Kortom, een praktische hoek met veel functionaliteit.

ACHTERTUIN
Bij de ideale gezinswoning hoort ook een aantrekkelijke achtertuin. Met 13 dieptemeters en 9 meter breedte heeft de tuin een mooi formaat waar je met gemak meerdere speeltoestellen zoals een trampoline en/of een schommel kwijt kunt. De huidige setting kenmerkt zich door een groen karakter afgewisseld door 3 terrassen waar altijd wel een plekje met zon te vinden is. Er is nagedacht over praktische zaken zoals elektra, tuinverlichting (gevellampen), een watertappunt en halverwege de tuin een drainafvoer.

Een groot pluspunt is de achterom langs de woning op. Wat we vaak zien is dat garageboxen van 2-kappers tegen elkaar aangebouwd worden waardoor de garage als achterom fungeert. Deze woning staat los van de buurwoning met ertussen een pad (achterom). Dit is ideaal wanneer je in de tuin gaat snoeien of fietsen in de schuur wilt stallen.

COMFORTABELE OPRIT
Doordat het perceel iets breder is dan de woning, voelt ook de oprit lekker comfortabel aan. Deze is immers ook breder dan normaal (4 meter breed) waardoor je gemakkelijk kunt in- en uitstappen zonder dat je gelijk bij de buurwoning op de oprit staat. De oprit is meer dan 11 meter lang waardoor je ook prima 2 auto’s achter elkaar kunt parkeren. En rij je elektrisch, dan kun je de aanwezige laadpaal vast waarderen. Deze blijft namelijk achter.

Het platte dak van de hobbyruimte is aan de voorzijde, ter hoogte van de voordeur, verlengd waardoor er een luifel/overkapping is gecreëerd. Hierdoor sta je bij de voordeur altijd droog. Onder de luifel zijn inbouwspots aangebracht.

LOCATIE
Deze woning vinden we terug in een rustige, gemoedelijke en kindvriendelijke woonwijk. De Johan Frisostraat loopt als het ware rond waardoor er ook geen doorgaand verkeer is (uitsluitend bestemmingsverkeer). Gasten kunnen parkeren in de parkeerhavens die in het straatbeeld zijn geïntegreerd.

Noemenswaardig is de nabijgelegen speelweide. Deze ligt letterlijk om de hoek waar kinderen naar hartenlust met de speeltoestellen kunnen spelen terwijl ouders op een bankje lekker bijkletsen. Groene hagen zorgen ervoor dat kinderen niet zomaar de weg oprennen, ook al is de straat autoluw te noemen. Kortom, hier geniet je het woongenot van een relatief jonge woonwijk waar je zomers de vogeltjes nog hoort fluiten.

RANDWIJK
Randwijk is een gemoedelijk dorp aan de voet van de Rijndijk gelegen. Het dorp wordt omzoomd door onder meer weilanden en de dijk met daarachter de uiterwaarden van de Rijn. Randwijk heeft een eigen basisschool. Een middelbare school (van VMBO tot Atheneum) ligt eveneens binnen handbereik, namelijk in het naburige dorp Zetten (5 autominuten afstand). Hier vind je tevens een veelzijdig winkelaanbod met o.a. 3 supermarkten, bekende winkelketens als Hema en Kruidvat, maar ook gezellige, ambachtelijke winkels als een slager, een bakker en een kaaswinkel.

Door de centrale ligging in de regio ben je binnen 10 minuten in Wageningen (via de pont van Lexkesveer) en via de A50 en/of A15 binnen 15 tot 20 autominuten in Arnhem en Nijmegen. Bovendien is er een treinverbinding naar Arnhem of Tiel en is er een directe verbinding met de snelweg A15.

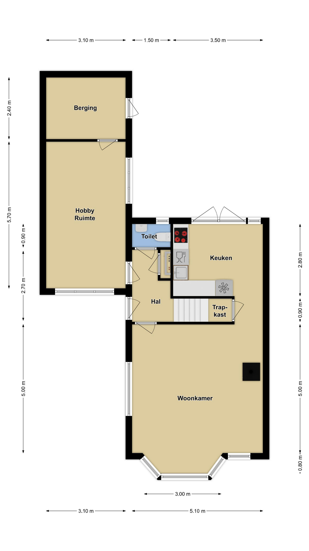
INDELING
Begane grond:
Hal/entree met meterkast, toilet en trapopgang
Woonkamer met erker, houtkachel en airconditioning
Half-open keuken in hoekopstelling, v.v. inbouwapparatuur en dubbele terrasdeuren
Hobby/werkruimte met aan 2 zijden lichtinval
Inpandige schuur/stallingsruimte (achter hobbyruimte) met tuindeur.
1e Verdieping:
Overloop met daglicht, airconditioning en 2e trapopgang
3 Slaapkamers waarbij de ramen zijn v.v. horren
Badkamer met ligbad, douche, wastafelmeubel, spiegel en 2e toilet.
2e Verdieping:
Voorzolder met witgoedaansluitingen, dak doorvoer, dakvenster en knieschot opbergruimte
Inbouwkast met CV-ketel en MV-unit
4e Slaapkamer met groot dakvenster en knieschot opbergruimte.

PLUSPUNTEN VOOR DE KOPER
Verrassend leuke gezinswoning met 3 woonlagen woonplezier
Opvallend veel gemak en wooncomfort
Verzorgd en hoogwaardig afwerkingsniveau
Erker aan de voorzijde
Mooie, houten parketvloer zorgt voor warme woonsfeer
Gezellige houtkachel in de woonkamer
Relatief nieuwe inbouwkeuken met trendy uitstraling en verlichting
Dubbele terrasdeuren waardoor je het buitenleven eenvoudig bij de woning betrekt
Hobby/werkkamer zorgt voor flink wat extra leefruimte
4 Volwaardige slaapkamers
Complete badkamer met ligbad én douche
Meterkast: 10 groepen (aut), inclusief kookgroep, laadpaal, airco en saunagroep
CV-ketel: Remeha Tzerra HR-combiketel, geplaatst 2017
Volledig geïsoleerd
De meeste beglazing is vervangen door HR++ beglazing
Nieuwe Velux dakvensters
Lage energielasten door 10 zonnepanelen
Airconditioning in de woonkamer en op de overloop
Energielabel A
Laadpaal blijft achter
Opvallend goede onderhoudsstaat
Schilderwerk in 2022 door schilder uitgevoerd (+ nieuwe neuslatten aangebracht)
Aantrekkelijke en zonnige achtertuin
Achterom langs de woning op (niet binnendoor)
Comfortabele, relatief brede oprit
Luifel bij voordeur v.v. inbouwspots
Gewilde woonwijk met speelvoorzieningen om de hoek
Treinstation op fietsafstand (in Zetten)
Wageningen is via de pont goed aan te rijden (auto en fiets)
Op loopafstand gelegen van basisschool en de uiterwaarden van de Rijn.

TIP:
Wilt u meer te weten komen over deze woning?
Beleef dan ook eens de aanvullende producten die wij standaard bij al onze woningen aan de Funda-presentatie koppelen:
– Professionele woonvideo
– Virtuele tour door de woning
– Interactieve plattegronden met tuinindeling.

Deze informatie is door ons met de nodige zorgvuldigheid samengesteld. Onzerzijds wordt echter geen enkele aansprakelijkheid aanvaard voor enige onvolledigheid, onjuistheid of anderszins, dan wel de gevolgen daarvan. Alle opgegeven maten en oppervlakten zijn indicatief. Van toepassing zijn de NVM-voorwaarden.

+ Lees meer
Kenmerken
Stel een vraag
Locatie

    Gratis waardebepaling van uw woning