ZETTENDe Grip 57

Vraagprijs €465.000,- k.k.
Verkocht
KENMERKEN
Woonhuissoort
Eengezinswoning
Woonhuistype
2-onder-1 kapwoning
Bouwjaar
2002
Energieklasse
A
LOCATIE
Provincie
GELDERLAND
Plaats
ZETTEN
Postcode
6671 GJ
Straat
De Grip 57
  • Omschrijving
  • Foto's
  • Kenmerken
  • Stel een vraag
  • Locatie
Omschrijving

ZETTEN
De Grip 57

Zeer energiezuinige, comfortabele 2-ONDER-1-KAPWONING (2002), bestaande uit 3 woonlagen. Met op de begane grond een lichte woonkamer in L-vorm en een complete inbouwkeuken. De verdiepingen bieden 4 volwaardige slaapkamers, de badkamer en een voorzolder. De woning heeft vloerverwarming in de gehele woning (géén radiatoren en gasaansluiting) en duurzame voorzieningen zoals een warmtepomp, zonneboiler en WTW-ventilatie. In mei 2023 zijn ook nog 14 zonnepanelen geplaatst, deze worden ter overname aangeboden. Hierdoor is de woning vrijwel energieneutraal te bewonen.

Deze aantrekkelijke gezinswoning staat op een verrassend groot perceel van bijna 300m2 waarbij de achtertuin meer dan 15 meter diep is. De tuin is aangelegd met meerdere terrassen en ruimte voor speeltoestellen. Uiteraard is er ook een achterom aanwezig. Naast de woning is een ruime garage aangebouwd met daarvoor een oprit welke plaats biedt aan 2 auto’s.

Quote van de makelaar: “We kunnen bij deze woning wel stellen dat het alles heeft wat je van een complete gezinswoning mag verwachten. De duurzaamheid en hoge isolatiewaarde van de woning maakt het in deze tijd extra aantrekkelijk. Je woont hier in een gewilde, ruim opgezette en groene woonwijk die voor kinderen ideaal is”.

ENERGIEZUINIG & COMFORTABEL
Zoals eerder al genoemd, betreft deze woning een energiezuinige en comfortabele woning. Zoals de projectontwikkelaar het destijds bij de ontwikkeling zo mooi zei: “De woning is ecologisch en economisch verantwoord gebouwd waarbij met energiebesparende maatregelen, veel comfort wordt behaald”.
Ten eerste heeft de woning géén gasaansluiting en gaat alles elektrisch. Ten tweede heeft de woning géén cv-ketel omdat de woning een eigen warmtepomp heeft. Warmte wordt op twee manieren ‘gewonnen’, in eerste instantie met zonnewarmte en wanneer dit onvoldoende is, met aardwarmte. Deze combinatie zorgt uiteindelijk voor een zeer hoog rendement. Een zeer groot voordeel van de warmtepomp is dat het niet alleen in de winter verwarmd, maar in de zomer ook koelt. Bij warme zomerdagen blijft het in huis koel en aangenaam. Ook het ventilatiesysteem (WTW-unit) draagt haar steentje eraan bij. Je hoeft zelfs geen ramen open te zetten om toch de woning voldoende te kunnen ventileren. Kortom, deze woning is helemaal op de toekomst voorbereid.

WOONKAMER
De woonkamer is aan de voorzijde van de woning gelegen. De raampartijen zijn groot en speels vormgegeven waardoor je hier een prettige lichtinval hebt. Opvallend is dat de woning breder is dan gemiddeld, namelijk 5,8 meter binnenwerks, waardoor de woning ruimtelijk aanvoelt. De schuine wand met de hal zorgt eveneens voor een speels effect. De plavuizen op de vloer voelen in zowel de winter als de zomer aangenaam aan omdat de onderliggende vloerverwarming kan verwarmen én kan koelen.

OPEN KEUKEN
Aan de achterzijde van de woning is de keuken gelegen. Door het open karakter staat de keuken in verbinding met de eethoek. De keuken is in een hoekopstelling geplaatst met hoge bovenkast waardoor je maximaal veel kastruimte hebt. Alle wenselijke inbouwapparatuur is aanwezig, zijnde een vaatwasser, een 4-pits inductiekookplaat, een afzuigkap, een (grote) oven, een magnetron en een koelkast. In de zomer buiten eten? Dan loop hier via de buitendeur zo je terras op.

1e VERDIEPING
Via de trapopgang in de hal komen we op de 1e verdieping terecht, het extra zijgevelraam zorgt hier voor een prettige lichtinval op de overloop. Deze woonlaag is opgedeeld in 3 ruime slaapkamers en de badkamer. Opvallend is hier de verzorgde tegelvloer welke drempelloos doorloopt op de overloop en de slaapkamers. Ook deze woonlaag is voorzien van vloerverwarming, dit zorgt ervoor dat er geen radiatoren aanwezig zijn waardoor je de kamer optimaal in kunt richten. De slaapkamers zijn respectievelijk 16m2, 14m2 en 9m2 groot, een kleine kamer zit er dus niet tussen.

BADKAMER
De badkamer is tussen de slaapkamers in gelegen. De ruimte is ingedeeld met een douchecel, een zwevend wandcloset (2e toilet) en een wastafel. Boven de wastafel in een planchet geplaatst. De wastafelkast en de 2 toiletkasten zullen achterblijven waardoor je ook hier veel opbergmogelijkheden hebt. Bijzonder aan deze badkamer is de zogenoemde knuffelmuur. De wand achter de wastafel is namelijk voorzien van verwarming waardoor deze niet alleen aangenaam aanvoelt maar ook extra capaciteit biedt om de badkamer goed warm te krijgen. Het afwerkingsniveau is neutraal en degelijk uitgevoerd met licht tegelwerk. De tegelvloer is voorzien van vloerverwarming waardoor het comfortabel aanvoelt.

2e VERDIEPING
Via een vaste, open trap komen we op de 2e verdieping terecht. Opvallend is dat zelfs op deze woonlaag de vloerverwarming is doorgelegd. Deze woonlaag is opgedeeld in een voorzolder en een 4e slaapkamer. Op de voorzolder zijn de witgoedaansluitingen te vinden, ook heb je hier in de nok nog opbergruimte. De 4e slaapkamer heeft een groot dakraam wat zorgt voor veel lichtinval. De WTW-unit is keurig in een kast weggewerkt waarnaast nog een vaste kast veel opbergruimte biedt.

DIEPE ACHTERTUIN
Eén van de grote pluspunten van deze woning is de achtertuin. Deze is met meer dan 15 meter veel dieper dan de gemiddelde achtertuin. En doordat de tuin ook 9 meter breed is, is het een ideale tuin voor een gezin met kinderen. De tuin is grotendeels voorzien van tegels en grind waardoor het een onderhoudsvriendelijk karakter heeft. Enkele bloembakken en groene erfgrenzen zorgen voor toch een groene uitstraling. Aan de achtergevel is zonwering geplaatst waardoor je hier altijd een schaduwplek kunt realiseren. Erg praktisch is de aanwezige achterom, zodat je eenvoudig met de fiets, groencontainer of kruiwagen in de achtertuin kunt komen.

ZETTEN, hét winkeldorp van Nederland!
Zetten, een centraal gelegen dorp in de Gemeente Overbetuwe met ongeveer 5.500 inwoners. Zetten heeft een uitgebreid winkel- en dienstenaanbod en vervult daarmee een streekfunctie. Zetten heeft zelfs van alle dorpen in Nederland het grootste winkelaanbod gerelateerd aan het aantal inwoners. Bekende winkelketens als Kruidvat en Hema worden aan het dorpsplein afgewisseld door ambachtelijke winkeltjes waaronder een slager, een bakkerij, een kaasboer en een juwelier. Ook aan supermarkten is er geen gebrek aangezien u kunt kiezen uit de Albert Heijn, Jumbo en Aldi.

CENTRAAL GELEGEN
Of je nu in de stad werkt of op één van de bedrijvenparken in de nabijgelegen dorpen, het is altijd heerlijk thuiskomen tussen de rivieren de Rijn en de Waal. Het dorp is gelegen in de driehoeksverhouding Arnhem – Nijmegen – Tiel en heeft daardoor een goede ontsluiting. We vinden Zetten terug in de oksel van knooppunt Valburg waar de A15 en de A50 elkaar kruisen. Hierdoor ben je binnen 15 minuten in grote plaatsen als Beuningen, Elst, Wageningen en de grote steden Arnhem, Nijmegen en Tiel. Maar ook plaatsen als Oss, Ede of Apeldoorn liggen maar op een half uur rijden.
Kortom, wij laten je graag kennis maken met het veelzijdige dorp Zetten!

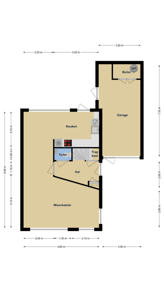
INDELING
Begane grond:
Hal/entree met toilet, meterkast, trapkast en trapopgang
Woonkamer met L-indeling
Open keuken met hoekopstelling en compleet met alle wenselijke inbouwapparatuur
Aangebouwde garage met kast met warmtepomp en zonneboiler.
1e Verdieping:
Overloop met zijgevelraam en 2e trapopgang
3 Slaapkamers
Badkamer met douchecel, 2e toilet en wastafel.
2e Verdieping:
Voorzolder met zijgevelraam en witgoedaansluitingen
4e Slaapkamers met groot dakvensters en een vaste kastenwand met WTW-unit.

BIJZONDERHEDEN:
Ideale gezinswoning in kindvriendelijke en rustige woonomgeving
Neutraal en degelijk afwerkingsniveau
Vloerverwarming in de gehele woning
Warm in de winter, koel in de zomer (altijd behaaglijk) door warmtepomp
Geen enkele radiator aanwezig
Géén gasaansluiting (gasloze woning)
14 Zonnepanelen geplaatst in mei 2023 (ter overname)
Energiezuinig ventilatiesysteem (warmte terugwin-unit van Itho)
Volledig geïsoleerd incl. HR++ beglazing
Prettige woonsfeer, mede door veel lichtinval en speelse raampartijen
Complete inbouwkeuken
In totaal 4 volwaardige slaapkamers
Badkamer met o.a. een 2e toilet
Knuffelmuur op de badkamer (muurverwarming)
Overloop en voorzolder met kopgevelraam
Groot dakraam op zolder
Glasvezel-aansluiting voor o.a. snel internet aanwezig
Diepe achtertuin met veel zon
Onderhoudsvriendelijke tuin met groene erfgrenzen
Achterom aanwezig
Ruime garage
Oprit met plaats voor 2 auto’s
Op steenworp afstand van de dorpsrand en op loopafstand van Landgoed Hemmen.

TIP:
Kijk ook eens naar de aanvullende producten op Funda die wij standaard bij al onze woningen koppelen:
– Professionele woonvideo
– Virtuele tour door de woning
– Interactieve plattegronden met tuinindeling.

Deze informatie is door ons zorgvuldig samengesteld. Onzerzijds wordt echter geen enkele aansprakelijkheid aanvaard voor enige onvolledigheid, onjuistheid of anderszins, dan wel de gevolgen daarvan. NVM Consumentenvoorwaarden zijn van toepassing.

+ Lees meer
Kenmerken
Stel een vraag
Locatie

    Gratis waardebepaling van uw woning