ARNHEMDe Weergang 25

Vraagprijs €292.500,- k.k.
Verkocht
KENMERKEN
Woonhuissoort
Eengezinswoning
Woonhuistype
Tussenwoning
Bouwjaar
1981
Energieklasse
C
LOCATIE
Provincie
GELDERLAND
Plaats
ARNHEM
Postcode
6843 JK
Straat
De Weergang 25
  • Omschrijving
  • Foto's
  • Kenmerken
  • Stel een vraag
  • Locatie
Omschrijving
ARNHEM
De Weergang 25
 
Verrassend ruim opgezette TUSSENWONING, bestaande uit 3 volwaardige woonlagen, een praktische achtertuin met STENEN SCHUUR alsmede een EIGEN CARPORT aan het voorgelegen hofje. Deze aantrekkelijke gezinswoning heeft een ruime woonkamer met brede schuifpui, een complete inbouwkeuken met open karakter, 2 grote slaapkamers op de 1e verdieping (voorheen 3) met een maximaal brede dakkapel aan de achterzijde, een neutrale badkamer met o.a. een ligbad/douche en een verrassend grote, multifunctionele 2e verdieping. De woning is grotendeels v.v. kunststof kozijnen en nagenoeg volledig v.v. isolatieglas.
 
De ligging is top namelijk op steenworp afstand van een winkelcentrum (o.a. een Jumbo en Lidl), meerdere scholen, een sporthal en treinstation Arnhem-Zuid.


Quote van de makelaar: “Een tussenwoning met maar liefst ca. 117m2 woonoppervlak én een eigen carport waardoor je altijd een auto beschut en op eigen terrein kunt parkeren. Met andere woorden: het betreft zeker géén doorsnee tussenwoning. De woning biedt de potentie om 4 tot 5 slaapkamers te maken waardoor de woning ook geschikt is voor een gezin met 3 kinderen”.
 
RUIME OPZET
De verspringende voorgevel die over 2 verdiepingen recht omhoog loopt laat al zien dat de woning groter is dan gemiddeld. Het toilet is als het ware ‘buiten’ de voorgevel gelegen waardoor je op de begane grond meer ruimte over houdt. Dat zie je dan ook terug in de woonkamer die als een ‘balzaal’ aanvoelt. Daarnaast is de woning op de 1e verdieping aanzienlijk vergroot door de maximaal brede dakkapel die extra is aangebracht. Er zijn geen kleine kamers in huis te vinden. En wanneer je op de 2e verdieping komt, wordt je verrast door de ruimte (en de mogelijkheden) die het te bieden heeft.
 
WOONKAMER
Bij binnenkomst in de woonkamer valt het fijne woonklimaat direct op. De grote raampartijen bieden veel lichtinval waardoor de ruimte aangenaam aanvoelt. De afwerking is verzorgd en neutraal te noemen met o.a. een houtlook laminaatvloer en lichte wanden. Het goede formaat biedt ruimte voor een grote hoekbank en een 6-persoons eettafel. In de zomerdag zet je de schuifpui open waardoor je de tuin eenvoudig bij de woonkamer betrekt. Naast de schuifpui is tevens een loopdeur aanwezig. Opvallend zijn de 2 vaste kasten (onder de trap) die voor bijzonder veel opbergruimte zorgen (voorraad, stofzuiger, enz.).
 
KEUKEN
De keuken bevindt zich aan de achterzijde van de woning. De keuken staat in open verbinding met de woonkamer waardoor je contact kunt houden met het gezin wanneer je een maaltijd bereid. Door de lage scheidingwand behoud je dit contact, maar kijk je vanaf de bank niet direct op het aanrecht. De keuken heeft een tijdloze uitstraling met lichte fronten een donker blad. Een leuk detail is dat de fronten zijn voorzien van een houtlook. Het keukenblok is daarbij voorzien van alle wenselijke inbouwapparatuur, zijnde een 5-pits gaskookplaat, een afzuigkap, een vaatwasser, een koel/vries-combinatie, een oven en een combi-oven/magnetron. In het plafond en onder de bovenkasten zijn inbouwspots verwerkt.
 
1e VERDIEPING
Via de hal/entree, waar ook het toilet en de meterkast zitten, komen we op de eerste verdieping terecht. Op deze woonlaag zijn 3 slaapkamers aanwezig, echter is in de huidige situatie een scheidingswand tussen 2 slaapkamers verwijderd waardoor deze kamers zijn samengevoegd. De deuren zijn aanwezig gebleven waardoor dit eenvoudig terug te brengen is naar 3 slaapkamers. Een breed dakkapel over de gehele breedte van de woning biedt meer praktische leefruimte.
 
BADKAMER
Aan de voorzijde van de woning is de badkamer gelegen. De badkamer is neutraal ingericht en voorzien van licht tegelwerk. Een ligbad/douche combinatie is aanwezig, alsmede een wastafel met planchet en een 2e toilet. Ook de handdoekradiator ontbreekt niet. Een hooggeplaatst raam biedt daglichtinval en tevens een ventilatiemogelijkheid. Ventileren is ook mogelijk middels de mechanische ventilatie.
 
2e VERDIEPING
Via de vaste trapopgang bereiken we de 2e verdieping. Deze verdieping is verrassend ruim. In de huidige setting betreft dit een grote ruimte, uiteraard is deze ruimte eenvoudig op te delen in een slaapkamer en een voorzolder. Doordat de voorgevel recht omhoogloopt heb je hier veel ruimte waardoor de extra slaapkamer geen kleine ruimte betreft. In de hoek tref je hier de opstelling van de cv-ketel (huur) en de mechanische ventilatie-unit. Ook zijn hier de aansluitingen voor de wasmachine en wasdroger te vinden.
 
ACHTERTUIN
Via de schuifpui is de achtertuin te bereiken. De tuin heeft een onderhoudsvriendelijk karakter en is ingedeeld met een groot terras. Met gemak kan je hier meerdere tuinsets kwijt waardoor er verschillende zithoeken worden gecreëerd. Achter in de tuin is een stenen schuur geplaatst. Hier heb je veel praktische opbergruimte voor bijvoorbeeld de fiets en/of motor. Een bredere poort dan gemiddeld maakt dat je eenvoudig met de motor te tuin in kan. De erfafscheidingen zijn degelijk geplaatst met houten schuttingen met betonpalen.
 
LOCATIE
De Weergang is een rustige straat in Elderveld, een wijk met veel jonge gezinnen. De groene omgeving en ruime opzet zal daarin zeker een rol spelen. Er zijn verschillende parken in de directe omgeving en er is volop speelgelegenheid in de wijk. Alle voorzieningen zoals winkels, scholen, kinderopvang, sportclubs en medische zorg zijn op loop- of fietsafstand aanwezig. Het centrum van Arnhem is snel bereikbaar met de fiets, de auto of het openbaar vervoer. Het NS-station Arnhem-Zuid ligt dichtbij en vanuit de wijk ben je zo op de snelwegen in de regio.
 
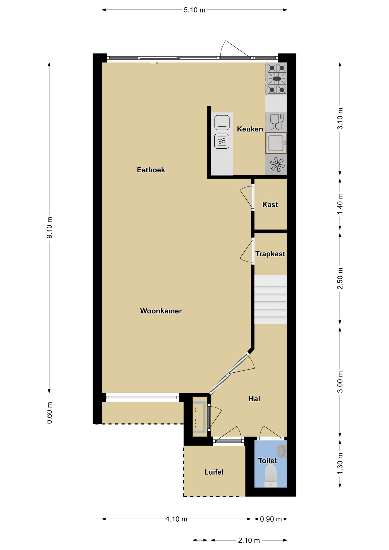
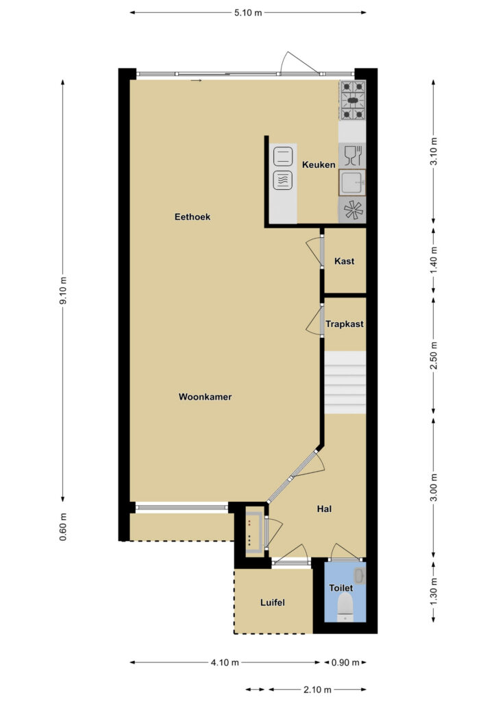
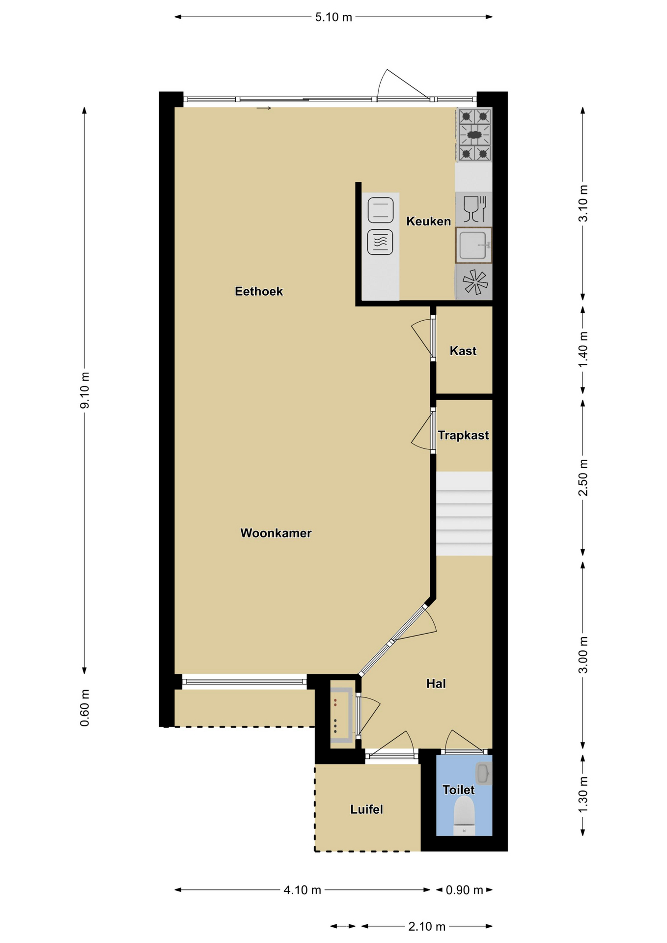
INDELING
Begane grond:
Entree met meterkast, toilet met fonteintje en trapopgang
Ruime woonkamer met brede schuifpui en 2 inbouw/voorraadkasten

Open keuken v.v. alle wenselijke inbouwapparatuur en tuindeur.
1e Verdieping:
Overloop met 2e trapopgang
Twee slaapkamers (voorheen drie)
Brede dakkapel aan de achterzijde
Badkamer met ligbad/douche, 2e toilet en wastafel.

2e Verdieping:
Multifunctionele, open ruimte met mogelijkheden tot 1 of misschien wel 2 extra (slaap)kamers
CV-ketelopstelling, MV-unit en witgoedaansluitingen.
 
BIJZONDERHEDEN
Ideale gezinswoning met ruime opzet
Grotendeels kunststof kozijnen v.v. draai/kiepramen
Brede schuifpui naar buitenterras
Keuken v.v. alle wenselijke inbouwapparatuur
Trapkast en vaste kast aanwezig in de woonkamer
Breed dakkapel op de 1e verdieping
Mogelijkheid voor 4 tot 5 slaapkamers
Mechanische ventilatie aanwezig
Vernieuwde groepenkast: 8 groepen en 2 aardlekschakelaars
CV-ketel: Intergas HR, geplaatst jan. 2022
CV-ketel betreft een huurketel, ca. € 29,30 p/maand (inclusief onderhoud)
Onderhoudsvriendelijke achtertuin
Stenen schuur
Extra brede poort naar achterom
Parkeren op eigen terrein onder de carport
Winkelcentrum, scholen en treinstation op loop/fietsafstand.
 
TIP:
Wilt u meer te weten komen over deze woning?
Beleef dan ook eens de aanvullende producten die wij standaard bij al onze woningen aan de Funda-presentatie koppelen:
- Professionele woonvideo
- Virtuele tour door de woning
- Interactieve plattegronden met tuinindeling.
 
Deze informatie is door ons met de nodige zorgvuldigheid samengesteld. Onzerzijds wordt echter geen enkele aansprakelijkheid aanvaard voor enige onvolledigheid, onjuistheid of anderszins, dan wel de gevolgen daarvan. Alle opgegeven maten en oppervlakten zijn indicatief. Van toepassing zijn de NVM-voorwaarden.
+ Lees meer
Kenmerken
Stel een vraag
Locatie

    Gratis waardebepaling van uw woning