ZETTENStationsstraat 19

Vraagprijs €389.000,- k.k.
Verkocht
KENMERKEN
Woonhuissoort
Eengezinswoning
Woonhuistype
2-onder-1 kapwoning
Bouwjaar
1989
Energieklasse
C
LOCATIE
Provincie
GELDERLAND
Plaats
ZETTEN
Postcode
6671 AW
Straat
Stationsstraat 19
  • Omschrijving
  • Foto's
  • Kenmerken
  • Stel een vraag
  • Locatie
Omschrijving

ZETTEN
Stationsstraat 19

Een verrassend ruim opgezette UITGEBOUWDE 2-ONDER-1-KAPWONING met 3 volwaardige woonlagen en een DIEPE OPRIT. Deze gezinswoning heeft ca. 132m2 woonoppervlak met in totaal 4 volwaardige slaapkamers op de verdiepingen. De woonkamer heeft vloerverwarming, aan de woonkamer grenst een kantoorruimte met berging. De keuken is voorzien van diverse inbouwapparatuur en een praktische bijkeuken. Ook de badkamer is compleet met onder meer een 2e toilet.

De achtertuin heeft een mooi rechthoekig formaat en is aangelegd met 2 terrassen. De schuur is groter dan gemiddeld waardoor je ook hier veel opbergruimte hebt. Aan de schuur staat een gezellig veranda met een houtkachel waar je heerlijk kunt genieten. Aan de voorzijde is een diepe oprit aanwezig waar je meerdere auto’s kunt parkeren. De woning heeft een centrale ligging in het dorp met alle voorzieningen dichtbij.

Quote van de makelaar: “Niet alleen de woning is comfortabel, ook de tuin zal je veel plezier bezorgen. Je kan hier heerlijk genieten in de zon of onder de gezellige veranda. De woning zelf is compleet met 4 slaapkamers en een extra kantoorruimte. Een gezin kan hier uitstekend uit de voeten.”.

WOONKAMER
Deze woning heeft een klassieke doorzon-woonkamer met grote raampartijen waaronder in de zijgevel. Hierdoor is het altijd licht in de woonkamer wat voor een prettige woonsfeer zorgt. De kamer is goed in te richten met een grote hoekbank en een 6-persoons eettafel. Op de vloer liggen plavuizen welke aangenaam aanvoelen door de aanwezige vloerverwarming.

WERKEN AAN HUIS
Doordat vanaf de bouw af de garage bij de woning is betrokken, zijn er flink wat extra vierkante meters leefruimte aan de woning toegevoegd. Deze ‘zijvleugel’ is opgedeeld in een werkkamer en een bergruimte. Hier kun je je prima terugtrekken om te werken en/of een speelkamer te maken. Aan de voorzijde geeft een groot raam veel lichtinval. Aan de achterzijde is een deur aanwezig waardoor je rechtstreeks de tuin in loopt.

KEUKEN MET BIJKEUKEN
De open keuken staat direct in verbinding met de woonkamer. Er is hier gekozen voor een recht keukenblok met bovenkasten tot aan het plafond, waardoor er veel kastruimte aanwezig is. De inbouwapparatuur bestaat uit een kookplaat (2 inductie, 2 keramische pitten), een koelkast en een combi-oven/magnetron. Door de close-in-boiler heb je direct warm water. Vanuit de keuken is de trapkast bereikbaar.
Grenzend aan de keuken is een aanbouw geplaatst wat in gebruik is als bijkeuken. Het tweede keukenblok biedt plaats voor een 2e spoelbak en een vaatwasser. De ruimte is voorzien van veel ramen en een deur naar de achtertuin.

1e VERDIEPING
Via een ruime hal met toilet en trapopgang komen we op de 1e verdieping terecht. De overloop schakelt hier 3 slaapkamers en de badkamer aan elkaar. De slaapkamers zijn respectievelijk 14m², 9m² en 7m² groot. Doordat je hier geen schuine dakvlakken tegen komt, zijn de kamers allen optimaal in te richten. Ook hier zien we de grote raampartijen terug waardoor de kamers allen veel lichtinval hebben.

BADKAMER
De badkamer is ruim opgezet waarbij al het wenselijke sanitair aanwezig is, maar er nog voldoende bewegingsruimte overblijft. De ruimte is geheel betegeld en ingericht met een douchecel, een wastafelmeubel en een 2e toilet (zwevend). Het wastafelmeubel is voorzien van veel extra opbergruimte. Uiteraard ontbreekt ook de handdoekradiator niet. Een hooggeplaatst raam biedt hier een ventilatiemogelijkheid, tevens is er ook mechanische afzuiging aanwezig.

2e VERDIEPING
Via de vaste trap is de 2e verdieping te bereiken. Deze woonlaag is opgedeeld in een voorzolder en een 4e slaapkamer. De slaapkamer is ca. 12m² groot, doordat dit gemeten is vanaf 1,5m hoogte, is de ruimte in werkelijkheid nog groter. Onder de schuine kanten zijn knieschotten geplaatst waardoor je veel spullen uit het zicht kunt opbergen. De kamer heeft een zijgevelraam en een groot dakraam. De voorzolder biedt veel opbergmogelijkheden. Ook zijn hier de witgoedaansluitingen en de opstelling van de cv-ketel terug te vinden. Ook hier zijn knieschotten en een dakraam geplaatst.

ACHTERTUIN
Bij deze woning hoort een heerlijke achtertuin. De tuin heeft een goed formaat, mede door de mooie breedte van het perceel. Geen wonder dat er hier meerdere terrassen zijn gecreëerd. Een groot terras direct aan de woning en een stijlvol vlonder terras achter in de tuin. Tussen de terrassen in is een vijver geplaatst met diverse planten en struiken. Achter in de hoek staat een ruime schuur welke met ca. 12m² grootte een stuk ruimer is dan gemiddeld. Naast het plaatsen van fietsen heb je hier veel ruimte om bijvoorbeeld te klussen. In de nok is nog extra opbergruimte aanwezig. Aan de schuur is een stijlvolle veranda geplaatst waar je heerlijk beschut kunt zitten. Wanneer het buiten afkoelt zit je hier nog heerlijk bij de houtkachel.

VOORTUIN EN OPRIT
De voortuin is ruim 7 meter diep waardoor je hier een fijne buffer hebt naar de straat toe. Diverse planten en struiken geven het een groene aankleding. Naast de woning is de oprit gelegen. Deze is ruim 11 meter diep waardoor je hier met gemak 2 auto’s op eigen terrein kunt parkeren. Mocht dit toch niet voldoende zijn, dan is er nog plek op straat voor de woning in een van de parkeerhavens.

ZETTEN, hét winkeldorp van Nederland!
Zetten, een centraal gelegen dorp in de Gemeente Overbetuwe met ongeveer 5.500 inwoners. Zetten heeft een uitgebreid winkel- en dienstenaanbod en vervult daarmee een streekfunctie. Zetten heeft zelfs van alle dorpen in Nederland het grootste winkelaanbod gerelateerd aan het aantal inwoners. Bekende winkelketens als Kruidvat, Hema en Primera worden aan het dorpsplein afgewisseld door ambachtelijke winkeltjes waaronder een slager, een bakkerij, een kaasboer en een juwelier. Ook aan supermarkten is er geen gebrek aangezien u kunt kiezen uit de Albert Heijn, Jumbo en Aldi. Aan de Hoofdstraat 68 vind je een enthousiast makelaarskantoor waar je vrijblijvend binnen mag lopen voor aanvullende informatie omtrent deze woning!

In Zetten vinden we 3 basisscholen terug alsmede een middelbare school met VMBO tot en met Atheneum. Er is een rijk verenigingsleven waarbij de omliggende dorpen elkaar versterken. Van voetbal- en tennisclub tot aan een dansschool, een turn- en volleybalvereniging, Zetten is van alle markten thuis. En mocht je van de vrije natuur houden, dan loop je hier binnen een handomdraai Landgoed Hemmen binnen alwaar je landelijke en bosrijke paden kunt bewandelen.

CENTRALE LIGGING
Of u nu in de stad werkt of op één van de bedrijvenparken in de nabijgelegen dorpen, het is altijd heerlijk thuiskomen tussen de rivieren de Rijn en de Waal. Het dorp is gelegen in de driehoeksverhouding Arnhem – Nijmegen – Tiel en heeft daardoor een goede ontsluiting. We vinden Zetten terug in de oksel van knooppunt Valburg waar de A15 en de A50 elkaar kruisen. Hierdoor bent u binnen 15 minuten in grote plaatsen als Beuningen, Elst, Wageningen en de grote steden Arnhem, Nijmegen en Tiel. Maar ook plaatsen als Oss, Ede of Apeldoorn liggen maar op een half uur rijden.
Kortom, wij laten u graag kennis maken met het veelzijdige dorp Zetten!

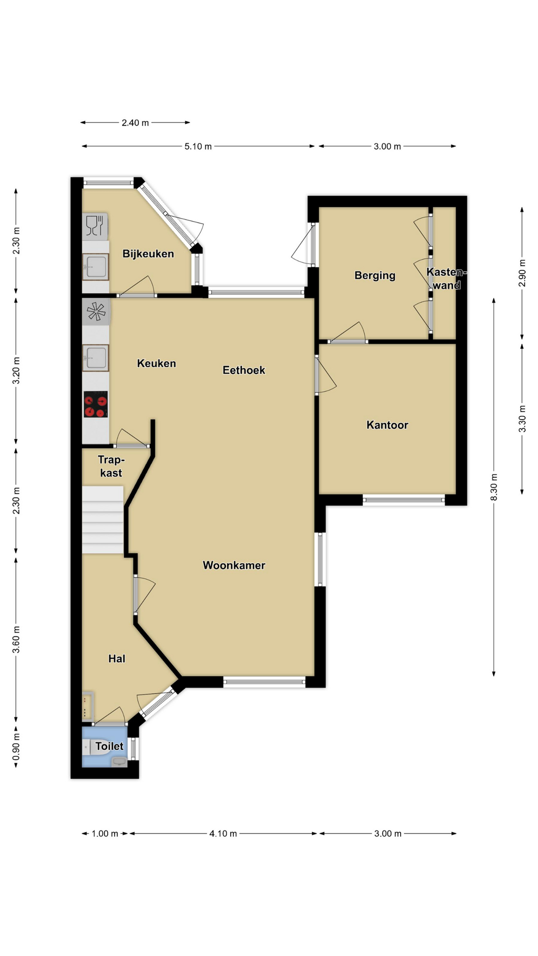
INDELING
Begane grond:
Hal/entree met toilet, meterkast en trapopgang
Doorzonwoonkamer met vloerverwarming
Kantoorruimte
Berging
Open keuken met diverse inbouwapparatuur en trapkast
Bijkeuken met 2e keukenblok, vaatwasser en tuindeur
1e Verdieping:
Overloop met vaste trap naar 2e verdieping
3 Slaapkamers
Badkamer met douchecel, een wastafelmeubel met extra kastruimte en een 2e toilet
2e Verdieping:
Voorzolder met witgoedaansluitingen en cv-ketelopstelling
Slaapkamer 4 met dakraam en knieschot kastruimte.

BIJZONDERHEDEN:
Ruim opgezette gezinswoning
Veel lichtinval zorgt voor prettige woonsfeer
Vloerverwarming op de begane grond
Open keuken v.v. inbouwapparatuur
Trapkast bij de keuken
Kantoorruimte
Berging met tuindeur
Bijkeuken met tuindeur
4 Volwaardige slaapkamers
Ruime badkamer met o.a. een 2e toilet
Zonnige achtertuin
Schuur groter dan gemiddeld
Sfeervolle veranda met houtkachel
Diepe oprit met plaatst voor meerdere auto’s
Diepe voortuin met buffer naar de straat
Nabij basisschool en het dorpsplein met winkels gelegen.

+ Lees meer
Kenmerken
Stel een vraag
Locatie

    Gratis waardebepaling van uw woning