TIELBegoniastraat 24

Vraagprijs €375.000,- k.k.
Verkocht o.v.
KENMERKEN
Woonhuissoort
Eengezinswoning
Woonhuistype
Tussenwoning
Bouwjaar
1957
Energieklasse
C
LOCATIE
Provincie
GELDERLAND
Plaats
TIEL
Postcode
4001 WN
Straat
Begoniastraat 24
  • Omschrijving
  • Foto's
  • Kenmerken
  • Stel een vraag
  • Locatie
Omschrijving

TIEL
Begoniastraat 24

Op loopafstand van het centrum, in een rustige wijk gelegen TUSSENWONING met onder meer een UITBOUW en een DIEPE ACHTERTUIN. Mede door de uitbouw tref je hier een royale woonkamer met meerdere zithoeken en dubbele terrasdeuren, een moderne, uitgebreide keukenopstelling en vloerverwarming in de aanbouw en keuken. Op de verdieping tref je 3 zeer volwaardige slaapkamers met vaste inbouwkast en een degelijke badkamer. De zoldervliering met stahoogte is verrassend ruim en biedt plaats aan de relatief nieuwe cv-ketel (2021) en heeft potentie voor een 4e slaapkamer.

De woning staat op een ruim perceel van 157m² wat zorgt voor een diepe, privacy volle achtertuin. De tuin is recent opnieuw aangelegd en voorzien van 2 terrassen en een eveneens vernieuwde schutting en poort. Dit alles is gelegen in een rustige, kindvriendelijke wijk met het centrum en alle winkelvoorzieningen van Tiel binnen handbereik.

Quote van de makelaar: “Deze woning is in de afgelopen jaren flink onder handen genomen, Een riante uitbouw, een nieuwe keuken, (gedeeltelijk) een betonvloer met vloerverwarming, een nieuwe cv-ketel, een opnieuw aangelegde voor- en achtertuin zijn slechts enkele punten die de verkoper heeft aangepakt. Daarbij springt vooral de ligging van deze woning in het oog. In een rustige wijk maar toch met het centrum van Tiel binnen enkele minuten lopen. Ben jij degene die hier zijn nieuwe thuis van maakt? Dan zien we jou graag voor een bezichtiging.”

UITGEBOUWDE WOONKAMER
Te beginnen in de woonkamer. Deze ruime living van meer dan 40m2 (!) voelt bijzonder ruimtelijk aan, hetgeen ook komt doordat er aan de achterzijde een riante aanbouw is geplaatst. Samen met het plaatsen van de aanbouw is de houten constructievloer in de keuken vervangen voor een betonvloer met isolatie en vloerverwarming. Door de aanbouw is er aanzienlijk meer leefruimte ontstaan waardoor je niet alleen plaats hebt voor al je wenselijke meubels, je kan hier ook eenvoudig wisselen in je interieur. Heb je liever de eethoek of toch juist de zithoek aan de voorzijde, het past allemaal. De glaspui tot aan de grond met daarin dubbele terrasdeuren zorgen ervoor dat je in de zomerdag zo de tuin in loopt.

MODERNE INBOUWKEUKEN
De keuken grenst direct aan de woonkamer en heeft een halfopen karakter. Je kijkt vanaf de bank niet direct op het aanrecht, maar toch heeft het die gezellige connectie dat je in dezelfde ruimte bent wanneer je aan het koken bent. Een leuk detail is het schiereiland waardoor er een bar is ontstaan waar je 2 barkrukken kwijt kan. Hier neem je samen lekker de dag door tijdens het koken.

De keuken is slechts 5 jaar oud en is in 2 gedeeltes geplaatst. Een hoge kastenwand met daartegenover een uitgebreid keukenblok met veel werkruimte. Alle wenselijke inbouwapparatuur is aanwezig, zijnde een 5-pits gaskookplaat, een moderne afzuigschouw, een vaatwasser, een combi-oven/magnetron, een grote oven en een koel/vriescombinatie. Achter de greeploze fronten schuilt veel opbergruimte in onder andere de brede ladekorven. Het marmerlook werkblad zorgt voor een luxe uitstraling.

1e VERDIEPING
Via de trapopgang in de hal bereiken we de 1e verdieping. Hier schakelt de overloop 3 slaapkamers en de badkamer aan elkaar. En ook hier vinden we weer een handige inbouwkast waar je bijvoorbeeld bedlinnen en handdoeken kunt opbergen. De slaapkamers zijn met ca. 14m2, 12m2 en 8m2 allen volwaardig te noemen. 2 slaapkamers zijn voorzien van een vaste inbouwkast waardoor je hier veel praktische bergruimte hebt. Opvallend zijn de grote raampartijen waardoor de kamers allen lekker licht zijn.

BADKAMER
De badkamer van deze woning is degelijk en neutraal waarbij er ook aandacht is besteed aan comfort. Er is namelijk een thermostaatdouche met grote rainshower en handdouche geïnstalleerd. Boven de wastafel is een handige spiegelkast geplaatst voor het opbergen van de nodige toiletspullen. Een groot raam zorgt voor de nodige lichtinval waarbij een ventilatierooster zorgt voor een prettige ventilatiemogelijkheid.

Mocht je een grotere badkamer met bijvoorbeeld een ligbad wensen, dan zou je ervoor kunnen kiezen om de badkamer te verplaatsen naar de kleinste slaapkamer. Met 8m2 grootte is er dan plaats voor al je wenselijke sanitair. Wanneer je hiervoor kiest, dan zou je de originele badkamer kunnen gebruiken als wasruimte voor het witgoed. In de huidige situatie staat de wasmachine nu in de trapkast op de begane grond.

ZOLDER MET STAHOOGTE
Het is jammer dat er geen vaste trap naar de zolder gaat aangezien de zolder nog verrassend groot is. Nu zul je het moeten doen met een vlizotrap. De zolder heeft goede stahoogte (nokhoogte 2,3 meter) en heeft zowel een dakraam wat voor de nodige daglichttoetreding zorgt. Heb je veel (seizoen)spullen om op te bergen, dan zal je deze zolder zeker kunnen waarderen.

Wanneer je het wenst zou je ervoor kunnen kiezen om een vaste trap te plaatsen waardoor je hier een 4e slaapkamer kan plaatsen. Dit eventueel in combinatie met een dakkapel waardoor je zelfs 2 extra kamers kan creëren.

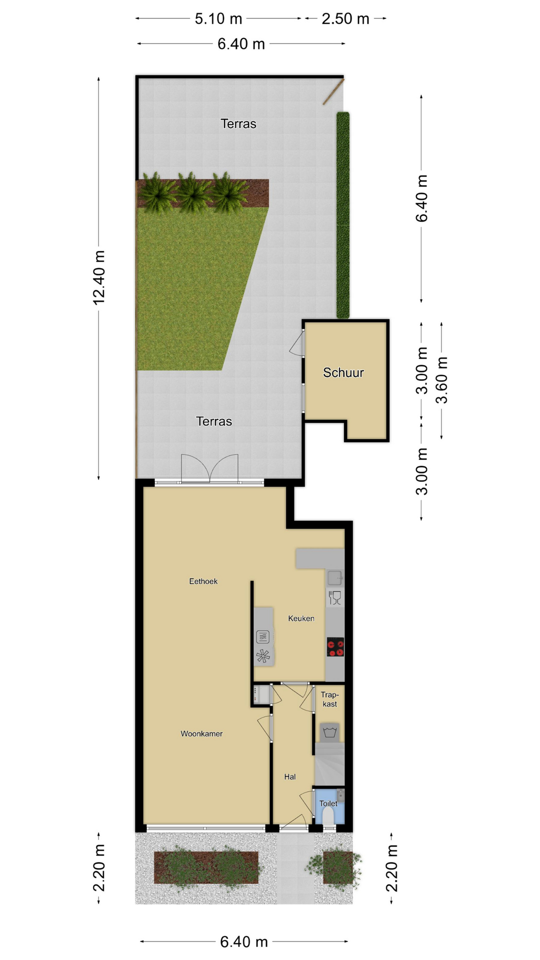
ZONNIGE ACHTERTUIN
Bij een leuke gezinswoning als deze hoort ook een aantrekkelijke achtertuin. Ben je een tuinliefhebber en geniet je graag van het buitenleven, dan zal je deze achtertuin zeker kunnen waarderen. Niet alleen vanwege de gunstige, vrije ligging zonder directe achterburen waardoor je veel privacy geniet, maar ook vanwege diepte van de tuin. Ondanks de royale uitbouw is er nog steeds bijna 12,5m diepte aan tuin over. Dat met een breedte van 6,4 meter zorgt dat je hier geen ruimte tekortkomt. De tuin is in de afgelopen jaren opnieuw aangelegd waarbij tevens de schutting en de poort is vernieuwd. De indeling is erg praktisch en sfeervol met 2 terrassen welke worden gescheiden door een grasveld en een border met planten. Met een ligging op het westen geniet je hier van veel middag en avondzon. Een stenen berging zorgt voor praktische opberg en stallingsruimte. Achter in de tuin is een achterom.

TIEL
Tiel is een sfeervolle en centraal gelegen stad in de Betuwe, bekend om haar fruitteelt en het jaarlijkse Fruitcorso. De stad ligt direct aan de rivier de Waal en combineert een historisch centrum met moderne voorzieningen. Tiel beschikt over een uitgebreid aanbod aan winkels, horeca, scholen, sportfaciliteiten en culturele voorzieningen, waaronder een theater en een levendig evenementenprogramma.

Gelegen in een rustige woonwijk woon je hier prettig en ontspannen, terwijl het centrum van Tiel op loopafstand ligt. Dagelijkse voorzieningen, winkels, horeca en het NS-station zijn snel en eenvoudig bereikbaar. Een ideale combinatie van rust, comfort en een centrale ligging.

INDELING
Begane grond:
Hal/entree met meterkast, toilet, trapkast en trapopgang
Uitgebouwde woonkamer met dubbele terrasdeuren
Halfopen keuken met schiereiland en inbouwapparatuur
1e Verdieping:
Overloop met inbouwkast
3 Slaapkamers met vaste inbouwkast
Badkamer met douche en wastafel
Zolder:
Te bereiken middels vlizotrap
Veel opbergruimte met stahoogte (2,3 meter).

PLUSPUNTEN VOOR DE KOPER
Geen standaard woonhuis
Aantrekkelijke gezinswoning met veel extra’s
Verrassend grote woonkamer, mede door uitbouw
Dubbele terrasdeuren
Vloerverwarming in de aanbouw en keuken
Luxe inbouwkeuken geplaatst in 2021
Schiereiland met ontbijtbar in de keuken
Trapkast met witgoedaansluiting
3 Volwaardige slaapkamers
Degelijke badkamer
Zoldervliering met stahoogte (2,3m)
Potentie voor extra slaapkamers (i.c.m. plaatsen vaste trap)
Glasvezelaansluiting t.b.v. TV en snel internet
Cv-ketel: Remeha HR-combi, geplaatst in 2021
Gevelbekleding voorzijde woning uitgevoerd in onderhoudsarm
Een schoorsteen recent opnieuw gevoegd
Verzorgde voor- en achtertuin met veel privacy
Tuin recent opnieuw aangelegd
Achtertuin toegankelijk via zijpad (achterom)
Rustige, autoluwe straat in kindvriendelijke woonwijk
Centrum van Tiel op loopafstand gelegen.

TIP:
Wilt u meer te weten komen over deze woning?
Beleef dan ook eens de aanvullende producten die wij standaard bij al onze woningen aan de Funda-presentatie koppelen:
– Professionele woonvideo
– Virtuele tour door de woning
– Interactieve plattegronden met tuinindeling.

Deze informatie is door ons met de nodige zorgvuldigheid samengesteld. Onzerzijds wordt echter geen enkele aansprakelijkheid aanvaard voor enige onvolledigheid, onjuistheid of anderszins, dan wel de gevolgen daarvan. Alle opgegeven maten en oppervlakten zijn indicatief. Van toepassing zijn de NVM-voorwaarden.

+ Lees meer
Kenmerken
Stel een vraag
Locatie

    Gratis waardebepaling van uw woning