ANDELSTJohan Frisostraat 3

Vraagprijs €375.000,- k.k.
Verkocht o.v.
KENMERKEN
Woonhuissoort
Eengezinswoning
Woonhuistype
Tussenwoning
Bouwjaar
1977
Energieklasse
A
LOCATIE
Provincie
GELDERLAND
Plaats
ANDELST
Postcode
6673 WT
Straat
Johan Frisostraat 3
  • Omschrijving
  • Foto's
  • Kenmerken
  • Stel een vraag
  • Locatie
Omschrijving

ANDELST
Johan Frisostraat 3

Gemoderniseerde, uitgebouwde en energiezuinige (A-label) TUSSENWONING met o.a. een 9 zonnepanelen, een tuingerichte woonkamer met grote glaspui, een moderne inbouwkeuken, een bijkeuken in de aanbouw, 4 slaapkamers op de 1e verdieping allen v.v. rolluiken, een moderne badkamer met o.a. een ruime inloopdouche en een zoldervliering met stahoogte.

Zowel de voor- als achtertuin zijn verzorgd aangelegd met achter in de tuin een stenen schuur met ernaast een brede schuifdeur als achterom naar het achterpad. Deze woning is gelegen aan een doodlopende straat in een rustige en kindvriendelijke wijk.

Quote van de makelaar: “Dit is een topper in het startersegment. Door de (extra) isolatie en 9 zonnepanelen draagt de woning een energielabel A. Daarbij tref je hier een aanbouw, een ruime woonkamer, 4 slaapkamers en een moderne badkamer en keuken. De kindvriendelijke en autoluwe ligging aan het einde van een doorlopende straat maakt het extra aantrekkelijk. Wees er dus op tijd bij voordat een ander van deze kans gaat genieten”.

ENERGIEZUINIG (A-LABEL)
In de afgelopen jaren heeft de verkoper niet stil gezeten en de woning verder geoptimaliseerd en na-geïsoleerd. Zo is er onder andere vloerisolatie aangebracht, is de gevel geïsoleerd en is er isolatie in de plafonds aangebracht. De ramen waren reeds geïsoleerd. Op het dak van de woning zijn 9 zonnepanelen geplaatst en om hiervan extra gebruik te maken is de gaskookplaat vervangen voor inductie. De cv-ketel is slechts 2 jaar oud en in de badkamer is mechanische ventilatie geplaatst. Dit alles heeft ervoor gezorgd dat de woning nu een energielabel A heeft gekregen. Dit kan erg gunstig zijn voor je hypotheekaanvraag. Buiten de energiezuinige maatregelen om is in de afgelopen jaren ook nog het platte dak van de aanbouw vervangen, zijn er nieuwe binnendeuren geplaatst en is er een traprenovatie toegepast. Kortom, zoek jij een woning waar als het werk al voor je gedaan is? Dan ben je hier aan het juiste adres.

WOONKAMER
De woonkamer is aan de achterzijde gelegen en daardoor tuingericht. De glaspui tot aan de vloer zorgt niet alleen voor veel lichtinval, maar ook voor een ruimtelijk gevoel. Op de vloer ligt een lichte pvc-vloer die doorloopt tot in de keuken. De woonkamer heeft een geheel eigen zithoek. In de overgang naar de keuken kun je een eettafel kwijt. De nieuwe paneeldeur met ruitjes naar de hal, maakt het helemaal af.

INBOUWKEUKEN
De keuken is aan de voorzijde gelegen. Opvallend is dat het raam bijna over de gehele breedte van de keuken is gesitueerd wat voor een prettige lichtinval zorgt. Met een screen aan de buitenzijde kun je de warmte van de zon weren. De keuken zelf heeft zwarte hoogglans fronten en is voorzien van diverse inbouwapparatuur. Hierbij moet je denken aan een vaatwasser, een koelkast, een oven, een 5-pits inductiekookplaat en een afzuigschouw. Voor direct warm water is er een close-in-boiler geïnstalleerd.

SLAAPKAMERS
Via een ruim opgezette hal/entree met o.a. een zwevend toilet en trapkast, komen we op de 1e verdieping terecht. Deze woonlaag is opgedeeld in 4 slaapkamers en de badkamer. De kamers zijn respectievelijk 12m², 9m², 9m² en 6m² groot. Elke slaapkamer heeft rechte muren waardoor de kamers praktisch en optimaal zijn in te richten. Alle kamers zijn bovendien voorzien van isolatieglas en rolluiken waardoor alle kamers geheel te verduisteren zijn.

BADKAMER
Tussen de slaapkamers in is de badkamer gelegen. De groot formaat donkere tegels zorgen voor een chique, hotelachtige uitstraling van de ruimte. De badkamer is ingedeeld met een inloopdouche, een 2e zwevend toilet en een waskom in de hoek. Het betreft een ware inloopdouche met drainafvoer (dus geen douchebak of cabine). In het plafond zijn dimbare inbouwspots aangebracht. Een handdoekradiator maakt het helemaal af.

ZOLDER
Via een vlizotrap op de overloop is de zolder te bereiken. Deze zolder is nog verrassend groot en biedt in de nok stahoogte (2,2m hoog). Hier kun je veel (seizoen)spullen opbergen. Ook hangt hier de cv-ketel (2023).

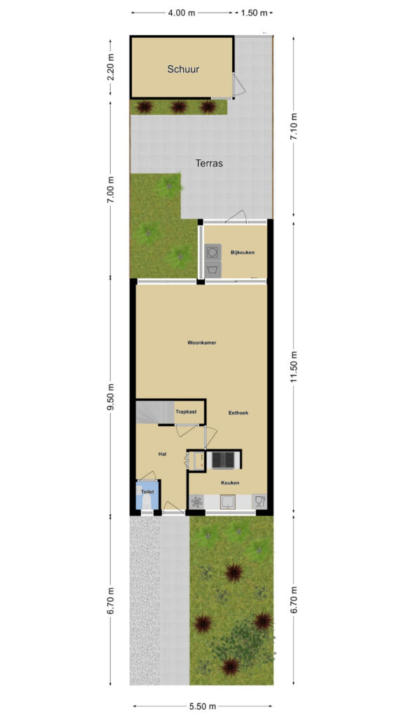
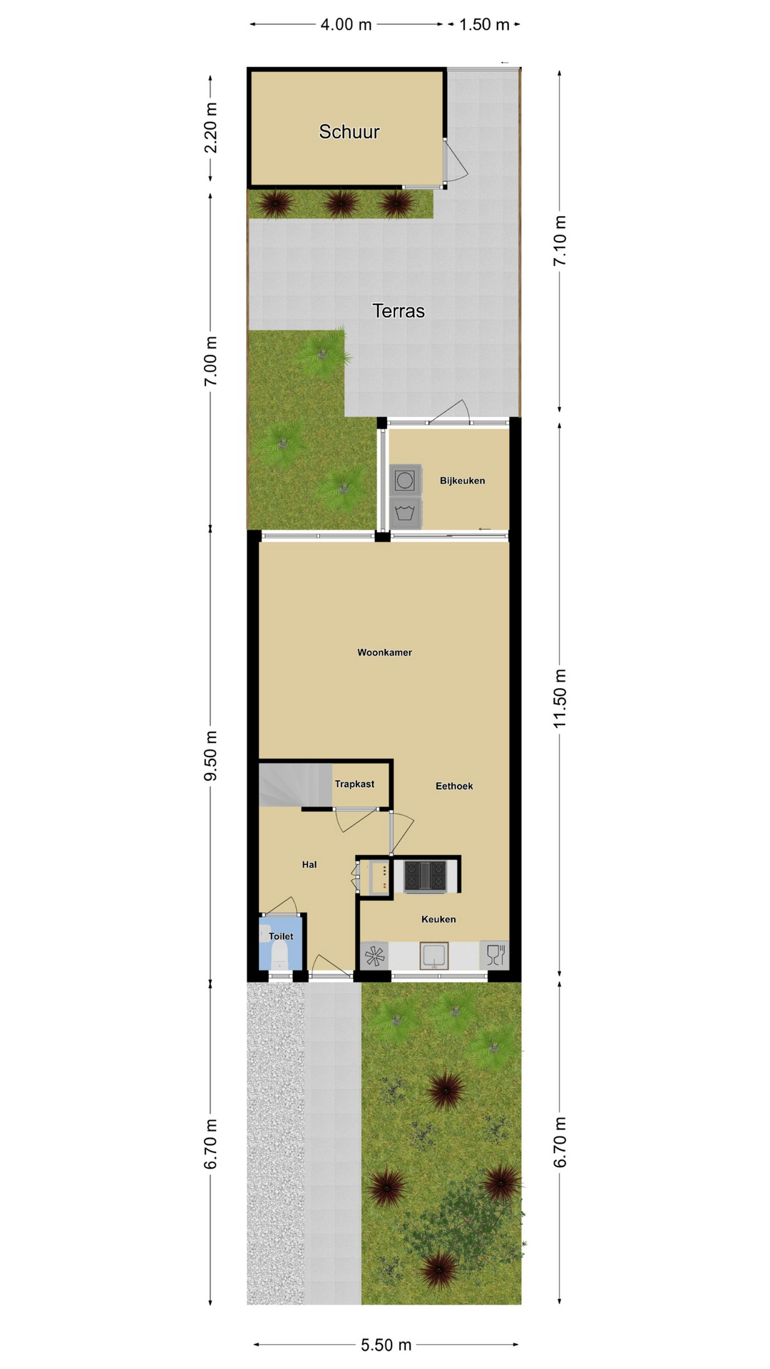
ACHTERTUIN
In 2020 is zowel de voor- als achtertuin opnieuw aangelegd met onder meer nieuwe bestrating. Dit geef de woning een verzorgde uitstraling. Meerdere planten en struiken zorgen voor een groene sfeer in de tuin. Achter in de tuin staat een stenen schuur (4m x 2,2m) waar je fietsen kunt stallen. Er is zelfs een voorziening getroffen voor het stallen van een motor aangezien de deur naar het achterpad is vervangen door een brede schuifdeur. De relatief nieuwe glaspui en boeiboorden zorgen ervoor dat de schuur er verzorgd uitziet.

LIGGING
Deze woning vinden we terug aan het einde van een doodlopend straatje van een rustige en kindvriendelijke woonwijk. Doordat de straat zeer autoluw is met alleen maar bestemmingsverkeer, kunnen kinderen hier met een gerust hart op straat spelen. De auto parkeren kun je pal voor de deur. Ben je op zoek naar een gezellige en gemoedelijke woonomgeving, dan zul je je hier al snel thuis voelen.

ANDELST / HERVELD
Andelst is eigenlijk één dorp met Herveld. Andelst en Herveld zijn centraal gelegen dorpen midden in de Gemeente Overbetuwe. Deze regio staat bekend om haar fruitteelt en de ligging tussen de Rijn en de Waal. Deze woning ligt op loopafstand van voornoemde rivier. Andelst en Herveld zijn gewild omdat het aan de ene kant het dorpse karakter herbergt, maar aan de andere kant centraal is gelegen t.o.v. belangrijke uitvalswegen waaronder de A15 en A50 (knooppunt Valburg). Grote plaatsen als Wageningen, Arnhem en Nijmegen zijn hierdoor binnen 15 autominuten te bereiken.

Midden in het dorp (Herveld) vinden we aan het dorpsplein o.a. een grote Coöp supermarkt en een drogisterij. Er zijn 2 basisscholen gevestigd en in het naburige dorp Zetten is en middelbare school te vinden. Ook is er een (nieuw) dorpshuis en worden er opvallend veel activiteiten georganiseerd. Wat dat betreft is het een levendig dorp met veel evenementen en verenigingen.

INDELING
Begane grond:
Hal/entree met toilet, meterkast, trap/voorraadkast en trapopgang
Woonkamer met grote glaspui
Halfopen keuken v.v. inbouwapparatuur
Bijkeuken met witgoedaansluitingen en tuindeur.
1e Verdieping:
Overloop met vlizotrap
4 Slaapkamers
Badkamer met inloopdouche, 2e toilet en wasmeubel (waskom)
Zoldervliering:
Veel opbergruimte en stahoogte
CV-ketelopstelling.

BIJZONDERHEDEN
Aantrekkelijke gezinswoning
Energielabel A
Goed na-geïsoleerd
9 Zonnepanelen
Grote ramen zorgen voor veel lichtinval
Ruime woonkamer met grote glaspui
Complete inbouwkeuken
Praktische aanbouw c.q. bijkeuken
Maar liefst 4 slaapkamers op de 1e verdieping
Moderne badkamer
Ruime bergzolder
Rolluiken op alle 4 de slaapkamers
Cv-ketel geplaatst in 2023
Uitgebreide groepenkast: 8 groepen + kookgroep en glasvezelaansluiting
Meerdere data-aansluitingen door de woning waaronder 2 slaapkamers
Elektra-contactpunt in de voortuin
Zolder met veel opbergmogelijkheden
Verzorgd en strak aangelegde voor- en achtertuin
Goed onderhouden schuur van 9m² groot
Rustige en kindvriendelijke woonomgeving.

TIP:
Wilt u meer te weten komen over deze woning?
Beleef dan ook eens de aanvullende producten die wij standaard bij al onze woningen aan de Funda-presentatie koppelen:
– Professionele woonvideo
– Virtuele tour door de woning
– Interactieve plattegronden met tuinindeling.

Deze informatie is door ons met de nodige zorgvuldigheid samengesteld. Onzerzijds wordt echter geen enkele aansprakelijkheid aanvaard voor enige onvolledigheid, onjuistheid of anderszins, dan wel de gevolgen daarvan. Alle opgegeven maten en oppervlakten zijn indicatief. Van toepassing zijn de NVM-voorwaarden.

+ Lees meer
Kenmerken
Stel een vraag
Locatie

    Gratis waardebepaling van uw woning