NIJMEGENWeefgewichtstraat 118

Vraagprijs €685.000,- k.k.
Verkocht
KENMERKEN
Woonhuissoort
Eengezinswoning
Woonhuistype
Hoekwoning
Bouwjaar
2005
Energieklasse
A
LOCATIE
Provincie
GELDERLAND
Plaats
NIJMEGEN
Postcode
6515 JM
Straat
Weefgewichtstraat 118
  • Omschrijving
  • Foto's
  • Kenmerken
  • Stel een vraag
  • Locatie
Omschrijving

NIJMEGEN
Weefgewichtstraat 118

Direct aan park gelegen, energiezuinige (A) EENGEZINSWONING (2005) met aangebouwde stenen GARAGE en DIEPE OPRIT. Deze woning biedt onder meer een ruime woonkamer met erker, openslaande tuindeuren en een massief eikenhouten vloer, een ruim opgezette, open keuken in U-opstelling, in totaal 4 zeer volwaardige slaapkamers op de verdiepingen waarvan 1 met DAKKAPEL, potentie voor een 5e slaapkamer, een luxe badkamer met ligbad én douche, zwevend geplaatste toiletten en een ruime voorzolder met wasruimte. De woning is energiezuinig en draagt het energielabel A. Op het dak liggen 15 zonnepanelen.

De woning wordt compleet gemaakt door een sfeervolle achtertuin met onder andere meerdere terrassen, diverse bomen en struiken en een tuinhuis Naast de woning is een stenen garage voorzien van elektra gebouwd met daarvoor een 14 meter diepe oprit met plaats voor 3 auto’s. De woning ligt aan een doodlopende straat met zeer weinig autoverkeer. Aan de voorzijde sta je direct aan het park Rietgraaf met uitzicht op water en veel groen. Een speeltuin is op loopafstand gelegen. Diverse winkels, horeca en het centrum van Nijmegen zijn op fietsafstand.

Quote van de makelaar: “Deze woning heeft misschien wel dé perfecte ligging. Direct aan een park met uitzicht op water, een doodlopende straat met weinig verkeer én het centrum van Nijmegen binnen handbereik. Daarbij is de woning geheel instapklaar en zeer compleet door onder andere een garage en diepe oprit. Zie jij jezelf al van dit plekje genieten?”

ENERGIELABEL A
Deze woning is in 2005 gebouwd en voldoet daardoor aan het laatste bouwbesluit. Dat wil zeggen: hoge deuren, hoge plafonds en een ‘luie’ trapopgang. Bovendien is de woning volledig geïsoleerd met o.a. HR++ beglazing waardoor het een energielabel A heeft. Dit is niet alleen aantrekkelijk voor de maandelijkse energielasten, maar ook gunstig bij de hypotheekaanvraag. Op het dak van de woning zijn maar liefst 15 zonnepanelen geplaatst wat tevens voordelig is voor de maandelijkse energielasten.

HAL/ENTREE
Via de voordeur met paneelverdeling en veel glas kom je binnen in de prettige, lichte hal. Opvallend zijn hier de dubbele deuren tussen de hal en de woonkamer welke tevens voorzien zijn van veel glas. Hierdoor ervaar je zelfs in de hal een ruimtelijk gevoel. Hier tref je naast een garderobe ook een zwevend geplaatst toilet met fonteintje alsmede de meterkast.

WOONKAMER
Bij binnenkomst springt de massief eikenhouten vloer direct in het oog. Deze vloer geeft veel warmte en sfeer aan de ruimte. Bovendien kan je de vloer schuren en behandelen waarmee je hem tevens lichter of donkerder kan maken. Een ander opvallend detail is de erker aan de voorzijde van de woning. Dit zorgt voor een speels effect van de ruimte, maar ook voor een uitzicht op het voorgelegen park met waterpartij. De ruimte is verder goed bemeten waardoor je hier eenvoudig meerdere grote meubels kan plaatsen. In de hoek van de woonkamer is een trapkast aanwezig voor de nodige opbergruimte. Aan de achterzijde zorgen openslaande tuindeuren ervoor dat je in de zomerdag de woonkamer en de tuin bij elkaar kan betrekken.

KEUKEN
De keuken is aan de achterzijde van de woning geplaatst. Ideaal aangezien je vanuit de keuken wel contact houdt met je tafelgenoten, maar vanaf de bank kijk je niet direct op het aanrechtblad. Er is gekozen voor een uitgebreide U-opstelling met enkele bovenkasten waardoor je hier veel opbergruimte treft. De aanwezige inbouwapparatuur bestaat uit een inductiekookplaat, een afzuigkap, een combi-oven/magnetron, een vaatwasser, een koelkast en een vriezer. Het composiet werkblad zorgt daarbij voor een luxe uitstraling. Erg prettig is het grote raam waardoor je tijdens het koken fijn de tuin in kijkt.

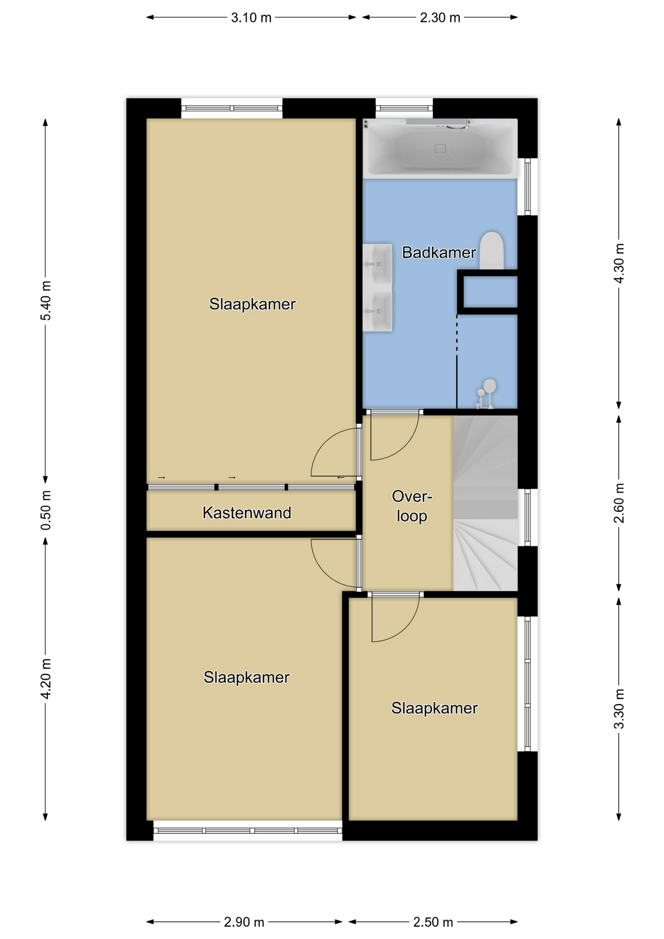
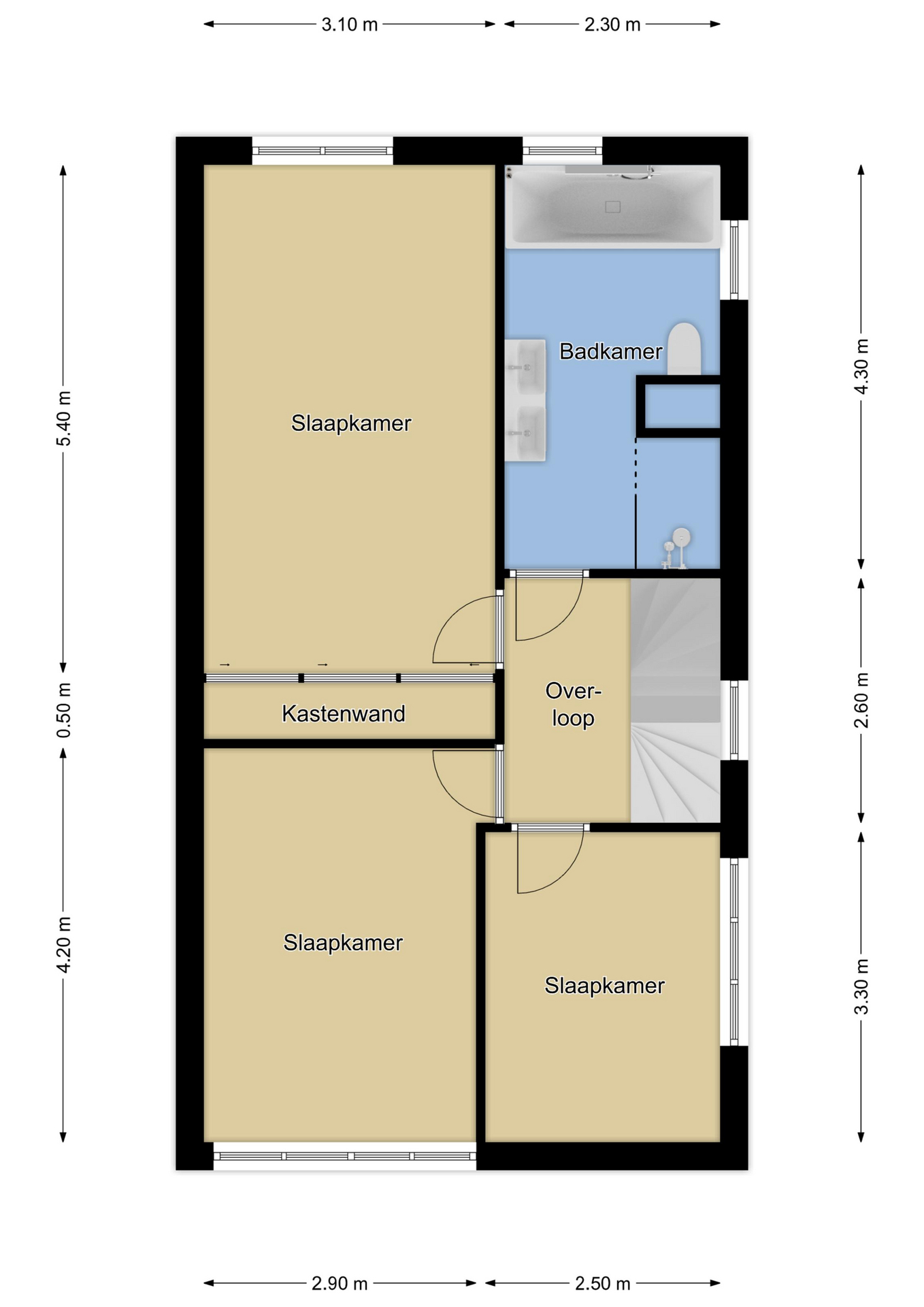
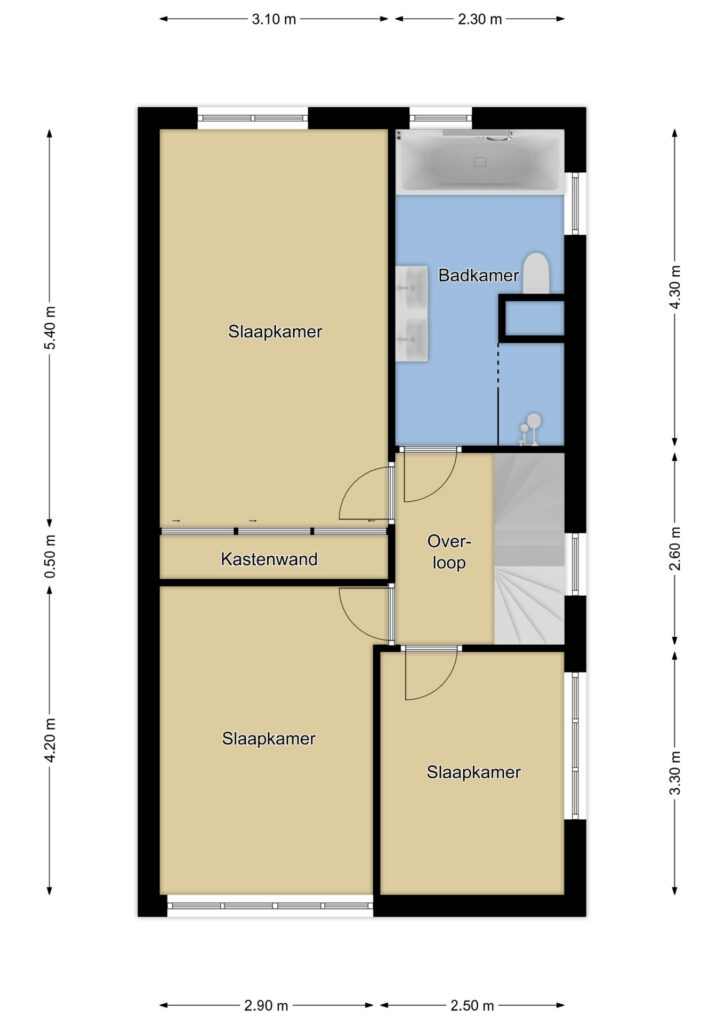
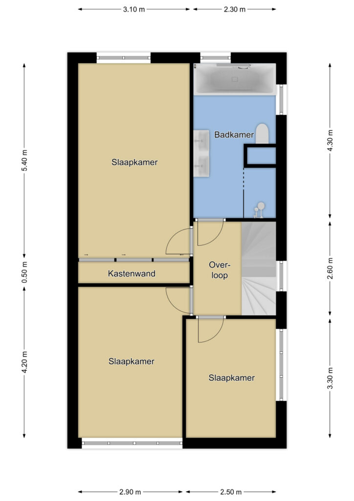
1e VERDIEPING
Op deze woonlaag schakelt de overloop 3 slaapkamers en de badkamer aan elkaar. De slaapkamers zijn allen verrassend ruim te noemen en zijn respectievelijk 19m², 12m² en 8m² groot. Een kleine kamer zit er dan ook niet tussen. Handig is dat de grootste kamer is voorzien van een brede kastenwand waarin je je volledige garderobe kwijt kan. Hier hoef je dan ook geen separate kast te plaatsen. De slaapkamers aan de voorzijde bieden wederom uitzicht over het voorgelegen park De Rietgraaf. Op de vloer ligt een verzorgde laminaatvloer welke eenduidig is doorgelegd op de slaapkamers.

LUXE BADKAMER
Slechts enkele jaren geleden is de badkamer gerenoveerd. Dat zie je terug in het gebruik van de moderne, groot formaat tegels in rustige en natuurlijke tinten. De badkamer is opvallend groot en daarom ook voorzien van al het wenselijke sanitair. Zo tref je hier een ligbad, een inloopdouche, een 2e toilet en een dubbel wastafelmeubel. Het wastafelmeubel is voorzien van brede lades en een spiegelkast voor de nodige opbergruimte. Twee kleine ramen zorgen voor daglicht en een ventilatiemogelijkheid, er is ook mechanische ventilatie aanwezig.

2e VERDIEPING
Door de hoge nok is de 2e verdieping een zeer volwaardige woonlaag geworden. Hier is dan ook gunstig gebruik van gemaakt door deze woonlaag op te delen in een voorzolder en een 4e slaapkamer. Deze slaapkamer is voorzien van een dakkapel waardoor je ook hier weer uitzicht hebt op het park. Op de voorzolder zijn de witgoedaansluitingen, de mechanische ventilatie-unit en de omvormer van de zonnepanelen geplaatst. Er is ook nog een flinke hoek aanwezig wat je eventueel zou kunnen afscheiding en zou kunnen gebruiken als 5e slaapkamer. Dit in combinatie met een dakraam of eventueel een dakkapel.

ACHTERTUIN
Bij deze woning hoort een sfeervolle achtertuin. De tuin is opgedeeld in twee terrassen met in het midden gras. Langs de erfafscheiding zijn diverse planten, struiken en bomen geplaatst waardoor je hier van veel groen geniet. Aan de achtergevel is elektrisch bedienbare zonwering geplaatst waardoor je hier eenvoudig een schaduwplek creëert. Achter de garage is nog een tuinhuis gebouwd waar je opbergruimte vindt voor bijvoorbeeld de tuinspullen. Bij deze schuur is tevens een puls geplaatst waardoor je grondwater kan gebruiken om de tuin te besproeien. De pomp wordt ter overname aangeboden.

GARAGE EN OPRIT
Een gezinswoning is pas compleet met een garage en oprit. De garage is solide in steen gebouwd en daarbij voorzien van een goede hoogte. Hierdoor heb je extra bergruimte, of je kan bijvoorbeeld een fiets in de hoogte stallen. Aan de voorzijde biedt een elektrische sectionaaldeur toegang tot deze garage waardoor je hier eenvoudig met een motor of fiets naar binnen rijdt. Aan de achterzijde heb je vanuit de garage toegang tot de achtertuin.
Voor de garage is een diepe oprit van maar liefst 14 meter gelegen waardoor je eenvoudig meerdere auto’s achter elkaar parkeert. Aan de voorzijde van de woning is de oprit iets verbreed waardoor je ook naast elkaar kan parkeren en je elkaar niet in de weg hoeft te staan.

LIGGING
De woning is vooral aan de voorzijde prachtig gelegen. Door de ligging direct aan het park de Rietgraaf geniet je hier van een zicht op veel groen en water. De woning staat daarbij aan een doodlopend straat waardoor je amper autoverkeer in de straat zult hebben. Ook een speeltuin voor de kinderen is nabij.

NIJMEGEN
De wijk Oosterhout is een onderdeel van de stad Nijmegen. Dit is een jonge woonwijk welke speels en afwisselend is opgezet voor een verrassend effect. In de wijk is een Albert Heijn en een Kruidvat aanwezig voor de nodige boodschappen. Ook zijn er diverse sportclubs nabijgelegen. Via de griftdijk is er een snelle verbinding naar de binnenstad, binnen 20 min. sta je in het hart van Nijmegen. Ook de uiterwaarden met de Waal zorgen voor veel wandelplezier.

INDELING
Begane grond:
Hal/entree met toilet, meterkast en trapopgang
Open keuken in U-opstelling en v.v. inbouwapparatuur
Woonkamer met erker, openslaande tuindeuren en trapkast
1e Verdieping:
Overloop
3 Ruime slaapkamers waarvan 1 met vaste kastenwand
Badkamer met ligbad, inloopdouche, 2e toilet en wastafelmeubel
2e Verdieping:
1 Slaapkamer met dakkapel
Voorzolder met witgoedaansluitingen en potentie voor een 5e slaapkamer.

BIJZONDERHEDEN
Comfortabele gezinswoning
Prachtige ligging aan park Rietgraaf
Energielabel A
15 Zonnepanelen
Massief eikenhouten vloer op de begane grond
Erker aan de voorzijde
Openslaande deuren aan de tuinzijde
Ruim opgezette woning met plaats voor grotere meubels
Zeer volwaardige keuken in U-opstelling
Dubbele haldeuren
3 slaapkamers op de 1e verdieping
1 Slaapkamer voorzien van vaste kastenwand
Luxe badkamer met o.a. inloopdouche, ligbad, 2e toilet en dubbel wastafelmeubel
4e slaapkamer op de 2e verdieping met dakkapel aan de voorzijde
Potentie voor een 5e slaapkamer
Riante voorzolder met o.a. witgoedaansluitingen
Sfeervolle achtertuin met meerdere terrassen
Houten berging (tuinshuis) met elektra
Achterom aanwezig, momenteel niet in gebruik maar kan gemakkelijk gerealiseerd worden
Stenen garage voorzien van elektra
Elektrisch bedienbare sectionaaldeur
Diepe oprit van 14 meter
Oprit verbreed om naast elkaar te parkeren
Supermarkt en drogist op loop- en fietsafstand (5 min.)
Binnenstad Nijmegen binnen 20 min. fietsen
Uiterwaarden van de Waal met waalstand nabij

TIP:
Wilt u meer te weten komen over deze woning?
Beleef dan ook eens de aanvullende producten die wij standaard bij al onze woningen aan de Funda-presentatie koppelen:
– Professionele woonvideo
– Virtuele tour door de woning
– Interactieve plattegronden met tuinindeling.

Deze informatie is door ons met de nodige zorgvuldigheid samengesteld. Onzerzijds wordt echter geen enkele aansprakelijkheid aanvaard voor enige onvolledigheid, onjuistheid of anderszins, dan wel de gevolgen daarvan. Alle opgegeven maten en oppervlakten zijn indicatief. Van toepassing zijn de NVM-voorwaarden.

+ Lees meer
Kenmerken
Stel een vraag
Locatie

    Gratis waardebepaling van uw woning