HETERENNarcissenstraat 61

Vraagprijs €399.000,- k.k.
Verkocht
KENMERKEN
Woonhuissoort
Eengezinswoning
Woonhuistype
Tussenwoning
Bouwjaar
1970
Energieklasse
B
LOCATIE
Provincie
GELDERLAND
Plaats
HETEREN
Postcode
6666 AZ
Straat
Narcissenstraat 61
  • Omschrijving
  • Foto's
  • Kenmerken
  • Stel een vraag
  • Locatie
Omschrijving

HETEREN
Narcissenstraat 61

Aan een rustige straat gelegen, over de volle breedte UITGEBOUWDE TUSSENWONING met een maximaal breed DAKKAPEL. De geheel instapklare woning beschikt over drie volwaardige woonlagen welke allen zijn voorzien van grote raampartijen en een moderne afwerking. De indeling bestaat uit een uitgebouwde doorzonwoonkamer met brede schuifpui, een open keuken met schiereiland, een praktische bijkeuken in de aanbouw. Op de 1e verdieping vind je 3 volwaardige slaapkamers en een moderne badkamer met o.a. een inloopdouche en 2e toilet. De 2e verdieping is voorzien van een maximaal breed dakkapel en is opgedeeld in een 4e (hoofd)slaapkamer en een voorzolder met witgoedaansluitingen. De woning is daarbij tot in de nok toe voorzien van een moderne en verzorgde afwerking en biedt vele extra’s zoals div. rolluiken, airconditioning, een relatief nieuwe cv-ketel (2022) en nieuw schilderwerk aan de voorzijde (2025).

Bij de woning hoort een zonnige tuin op het zuiden met een onderhoudsvriendelijk karakter. De stenen schuur is over de volle breedte geplaatst waardoor je hier meer dan voldoende opbergruimte treft. Daarbij ligt deze woning aan een rustige straat met het dorpshart, basisscholen en de uiterwaarden binnen handbereik.

Quote van de makelaar: “Heb jij geen zin of geen tijd om je handen uit de mouwen te steken, dan is dit wellicht dé woning voor jou. Deze goed onderhouden woning heeft niet alleen een brede uitbouw en een maximaal breed dakkapel. Ook biedt het veel extra’s zoals rolluiken, airconditioning, een praktische bijkeuken en een extra zithoek in de uitbouw. Zelfs het schilderwerk aan de voorzijde is in 2025 nog uitgevoerd! Ben jij degene die hier zijn meubels plaatst en direct gaat beginnen met genieten?”

WOONKAMER
Bij binnenkomst kom je aan in de ruime hal. De hal biedt toegang tot een praktische vaste kast, een diepe trapkast, het toilet en natuurlijk de woonkamer. Eenmaal binnen in de woonkamer ervaar je het lichte en open karakter dat deze woning kenmerkt. Dankzij de grote raampartijen aan voor- en achterzijde wordt de ruimte rijkelijk voorzien van daglicht. De gestucte wanden zorgen voor een strakke uitstraling, terwijl de slimme indeling uitnodigt om verschillende woonhoeken te creëren.
Aan de achterzijde van de woning is een fraaie uitbouw gerealiseerd die plaats biedt voor een tweede zithoek. Dit is de ideale plek om in alle rust te genieten van een goed boek, of om in de ochtendzon je eerste kop koffie te drinken.

OPEN KEUKEN
De woonkamer staat in open verbinding met de centrale eethoek, een fijne plek voor gezellige diners of borrels met familie en vrienden. De eethoek geeft toegang tot de moderne open keuken, uitgevoerd in een moderne kleurstelling. Het schiereiland zorgt hierbij voor extra werkruimte en een speelse uitstraling. De keuken is voorzien van een neutrale kleurstelling waarbij het werkblad doorloopt tegen de achterwand. Uiteraard is alle wenselijke inbouwapparatuur aanwezig: een inductie kookplaat, afzuigkap, koelkast, combi-oven/magnetron, vaatwasser en een heetwaterkraan. De keuken biedt veel werk- en kastruimte, waardoor koken hier een feestje wordt.
In de keuken is geen warmwateraansluiting aanwezig, om die reden is er een boiler welke voor warm zorgt.

BIJKEUKEN
Achter de keuken bevindt zich de bijkeuken, een functionele toevoeging aan het geheel. Omdat hier een 2e keukenblok in stijl met de keuken is geplaatst voelt dit aan als één geheel. Hier zijn een extra koelkast en vriezer geplaatst en vind je een wasbak met een close-in boiler. Een ideale ruimte voor extra opslag of het schoonhouden van sportspullen.

1e VERDIEPING
De eerste verdieping telt drie slaapkamers, allen bereikbaar via de overloop. Twee van de kamers zijn van respectievelijk formaat en uitermate geschikt als ouder- en kinderkamer. De derde kamer leent zich perfect als werkkamer of babykamer. In alle kamers ligt een klik PVC-vloer en dankzij de grote ramen geniet je ook hier van veel lichtinval.

BADKAMER
Net als de rest van de woning is ook de badkamer modern en tijdloos te noemen. De ruimte is praktisch ingedeeld met een brede inloopdouche met glazen scheidingwand, een 2e (zwevend geplaatst) toilet en een dubbel wastafelmeubel. Brede lades zorgen voor veel opbergruimte. Een hooggeplaatst raam zorgt voor een ventilatiemogelijkheid en toch privacy. Uiteraard is er ook een handdoekradiator aanwezig.

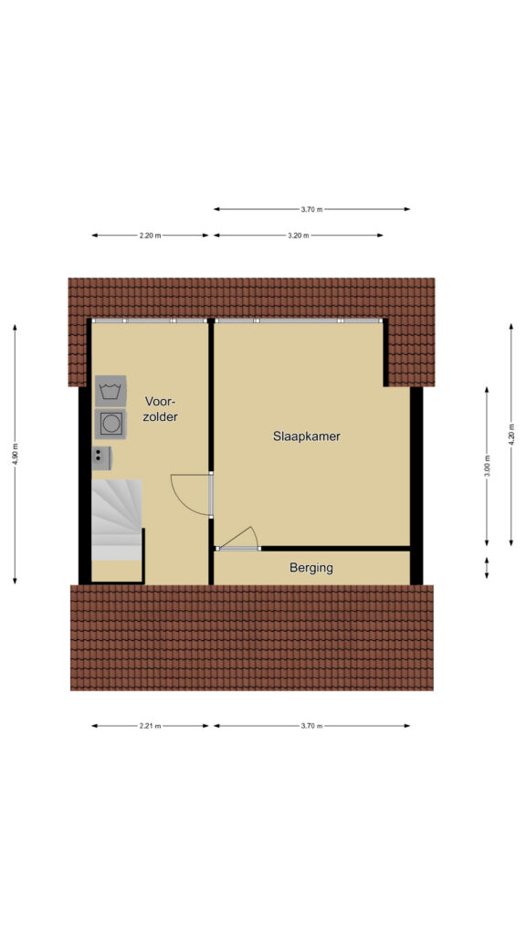
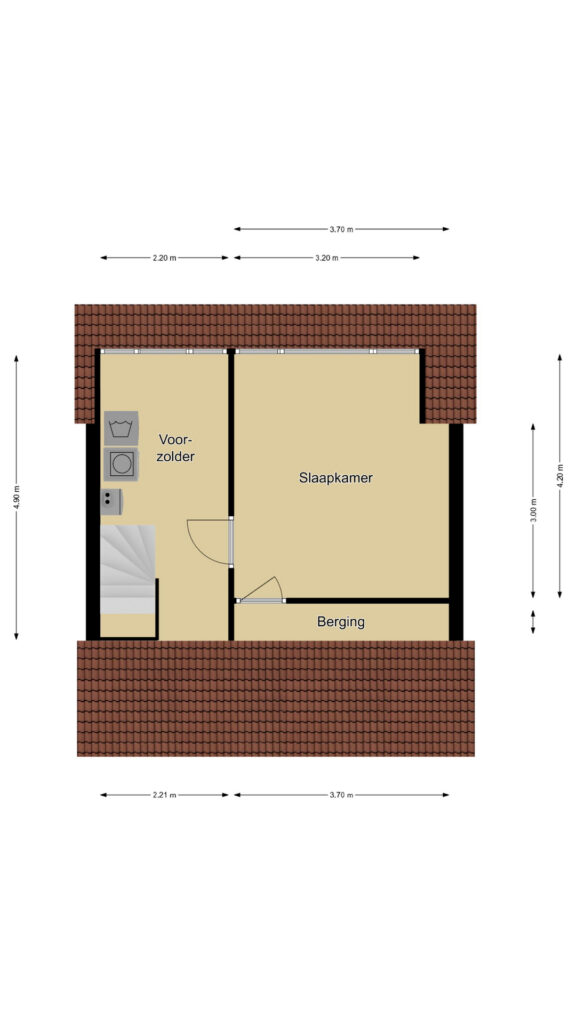
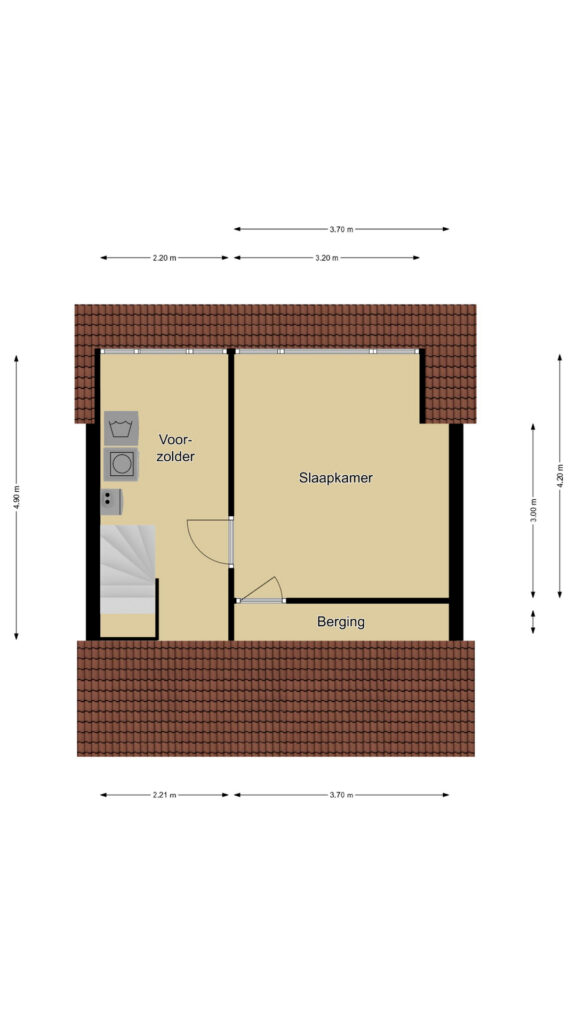
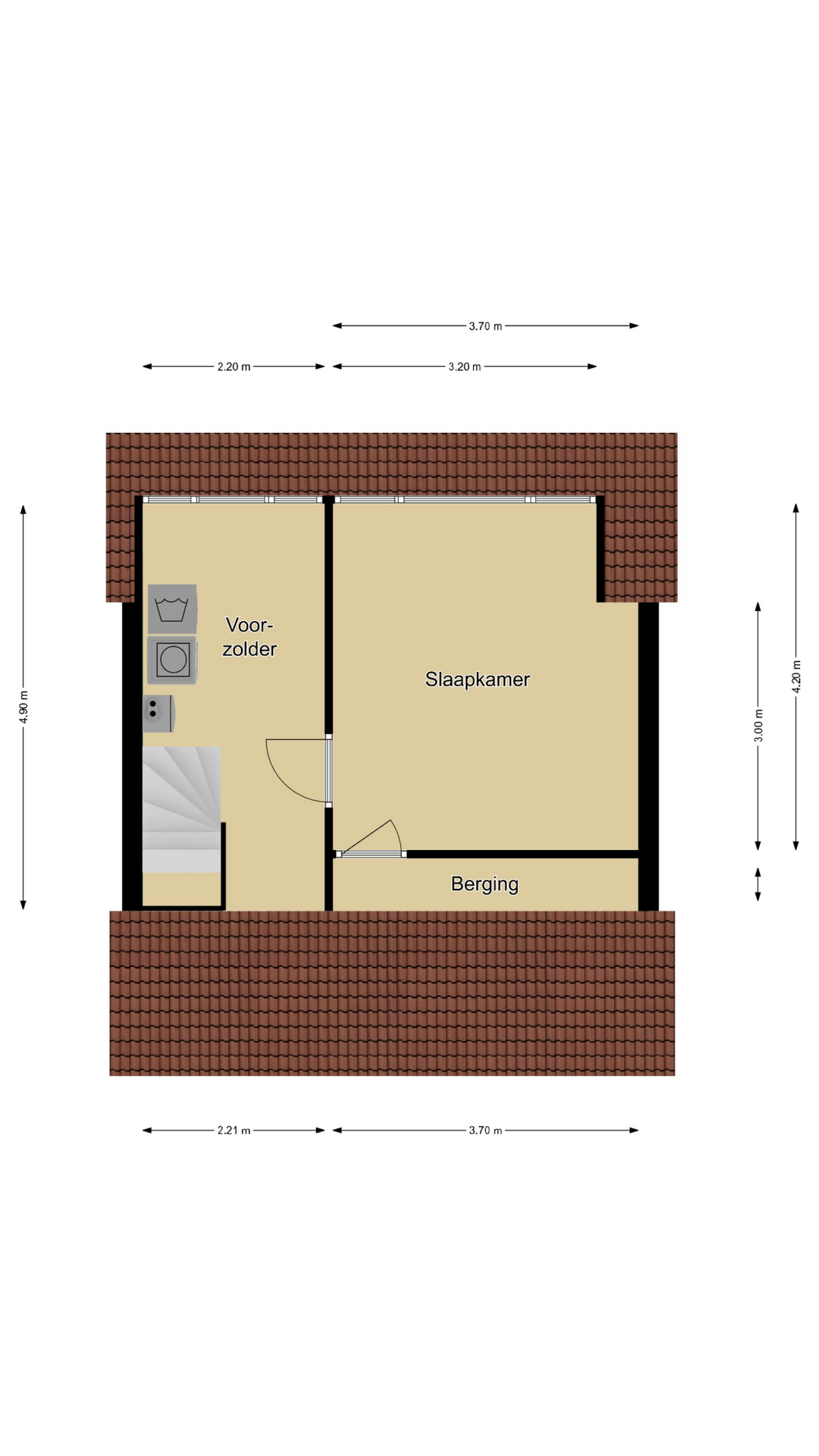
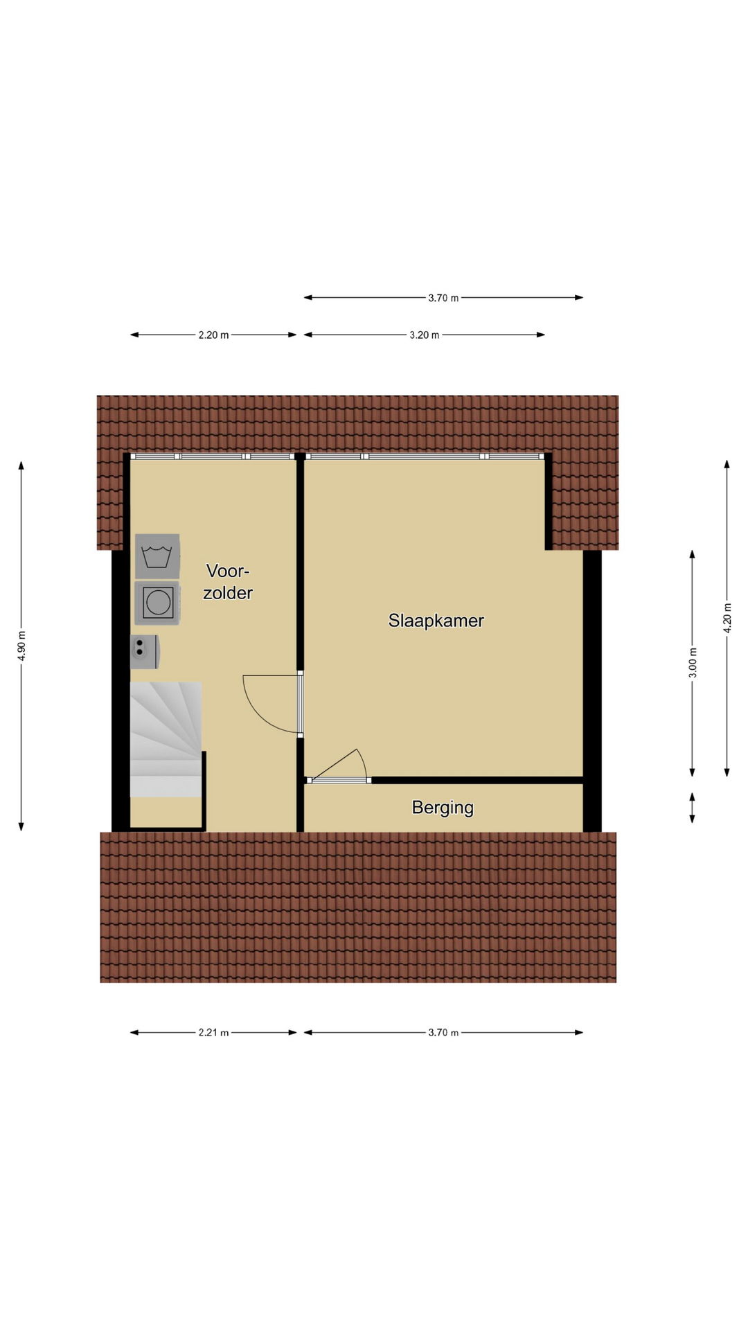
2e VERDIEPING
Via een vaste trap kom je op de tweede verdieping. Deze ruimte is door de maximaal brede dakkapel aanzienlijk vergroot. De ruimte is dan ook opgedeeld in een 4e slaapkamer en een ruime voorzolder. De slaapkamer dient (mede door zijn formaat) als hoofdslaapkamer en door de aanwezige airconditioning houd je het hier tevens heerlijk koel. Achter het bed is een scheidingwand geplaatst waarachter veel opbergruimte te vinden is. Op de voorzolder bevinden zich de witgoedaansluitingen en de opstelling van de cv-ketel (mei 2022).

ACHTERTUIN EN BERGING
De achtertuin is verzorgd aangelegd. Dankzij de ligging vol op het zuiden geniet je hier de gehele dag van de zon. Dankzij het kunstgras is de tuin onderhoudsvriendelijk te noemen. Achterin de tuin staat een grote stenen berging, perfect voor het stallen van fietsen, gereedschap of tuinmeubilair. De berging is bereikbaar via een achterom. Ook de voortuin is netjes aangelegd en draagt bij aan de verzorgde uitstraling van het geheel.

HETEREN aan de Rijn
In de afgelopen jaren is Heteren (in positieve zin) erg veranderd. Het dorp heeft zich hard gemaakt voor een nieuwe dorpskern met meer voorzieningen, faciliteiten en horeca. We kunnen wel stellen dat dit zeer geslaagd is. Hart van Heteren leeft met onder meer horecavoorzieningen, leuke winkeltjes, een warme bakker en een Jumbo supermarkt. En niet te vergeten de Huiskamer van Heteren waar vele maatschappelijke en sociale initiatieven te vinden zijn, alsmede een heuse koffiebranderij, flexibele werkplekken, het dorp servicepunt en misschien wel de leukste bibliotheek van Nederland. Voor op het plein is onlangs de nieuwe fontein onthult en ook de carillon zorgt voor kleur in de straat. Wanneer je vanaf de snelweg het dorp inrijdt kan het je niet ontgaan dat je langs meerdere kunstwerken van Roosje oprijdt.

De ambitie is om maandelijks diverse activiteiten en evenementen in het dorp te organiseren. De sportievelingen kunnen kiezen uit onder meer een sportschool, een (tafel)tennisvereniging en een voetbalvereniging. Hou je meer van het ruigere werk, dan rij je met de mountainbike de brug over en duik je bij Doorwerth de heuvelachtige bossen in op weg naar de Posbank (Veluwe).

CENTRAAL GELEGEN
Heteren is een dorp gelegen in het hart van de Gemeente Overbetuwe. Het heeft een centrale ligging met als directe uitvalswegen de A50 richting Arnhem/Ede of Nijmegen/Den Bosch of de A15 richting Tiel/Bemmel. Overigens leiden er meerdere wegen naar Arnhem, namelijk via de dijk of via de nieuwe provinciale weg, de N837. Door haar centrale ligging is er in de afgelopen jaren een modern industrieterrein gerealiseerd met toonaangevende bedrijven waaronder distributiecentrum Kruidvat en Porsche Gelderland. Ook is er een McDonalds-vestiging.

INDELING
Begane grond:
Entree/hal met meterkast, vaste kast en trapopgang
Toilet
Woonkamer met eethoek
Uitbouw met plaats voor extra zithoek of speelhoek
Open keuken voorzien van moderne inbouwapparatuur
Bijkeuken met 2e keukenblok
1e Verdieping:
Overloop
3 Volwaardige slaapkamers
Moderne badkamer met inloopdouche, 2e toilet en wastafelmeubel
2e Verdieping:
Voorzolder met witgoedaansluitingen en cv-ketel opstelling
4e Slaapkamer met dakkapel

BIJZONDERHEDEN:
Instapklare gezinswoning
Brede uitbouw aan de achterzijde
Maximaal breed dakkapel op de 2e verdieping
Neutrale en verzorgde afwerking
Schilderwerk aan de voorzijde is in 2025 nog gedaan
Alle wanden gestuukt, m.u.v. kleine slaapkamer 1e verdieping heeft behang
Grote raampartijen zorgen voor veel lichtinval
Beide trappen gerenoveerd met PVC in 2018
Woonkamer met openslaande deuren
Uitbouw voorzien van brede schuifpui
PVC Vloer op de begane grond
Luxe keuken met schiereiland
Alle wenselijke inbouwapparatuur aanwezig, zoals
Close-in-boiler zorgt voor direct warm water
Praktische bijkeuken in de aanbouw
4 Zeer volwaardige slaapkamers
Moderne badkamer met o.a. inloopdouche en dubbel wastafelmeubel
Dakkapel voorzien van kunststof kozijnen
Airconditioning aanwezig op de 2e verdieping
Rolluiken achterzijde slaapkamers 1e & 2e verdieping
Tuin vol op het zuiden
Onderhoudsvriendelijk karakter
Royale stenen berging
Achterom aanwezig
Dorpskern met winkels en horeca op loopafstand
Recreatie-/wandelgebied ‘De Hetersche Waarden’ binnen handbereik
Basisscholen op fietsafstand
Heteren heeft een centrale ligging in de regio.

LET OP! Indicatie oplevering: eind januari 2026

TIP:
Wilt u meer te weten komen over deze woning?
Beleef dan ook eens de aanvullende producten die wij standaard bij al onze woningen aan de Funda-presentatie koppelen:
– Professionele woonvideo
– Virtuele tour door de woning
– Interactieve plattegronden met tuinindeling.

Deze informatie is door ons met de nodige zorgvuldigheid samengesteld. Onzerzijds wordt echter geen enkele aansprakelijkheid aanvaard voor enige onvolledigheid, onjuistheid of anderszins, dan wel de gevolgen daarvan. Alle opgegeven maten en oppervlakten zijn indicatief. Van toepassing zijn de NVM-voorwaarden.

+ Lees meer
Kenmerken
Stel een vraag
Locatie

    Gratis waardebepaling van uw woning