ARNHEMSt. Janskerkstraat 123

Vraagprijs €385.000,- k.k.
Verkocht
KENMERKEN
Woonhuissoort
Eengezinswoning
Woonhuistype
Tussenwoning
Bouwjaar
1931
Energieklasse
C
LOCATIE
Provincie
GELDERLAND
Plaats
ARNHEM
Postcode
6822 EK
Straat
St. Janskerkstraat 123
  • Omschrijving
  • Foto's
  • Kenmerken
  • Stel een vraag
  • Locatie
Omschrijving

ARNHEM
St. Janskerkstraat 123

In het levendige Klarendal en nabij de bruisende binnenstad van Arnhem gelegen, karakteristieke en bijzonder sfeervolle TUSSENWONING die aan de achterzijde over de volle breedte is uitgebouwd.

Deze authentieke jaren ’30 woning is opvallend goed geïsoleerd (energielabel C) en is voorzien van maar liefst 12 zonnepanelen (2023). De woonkamer voelt lekker ruim aan doordat de keuken naar de aanbouw (met lichtkoepel) is verplaatst. De badkamer en toilet zijn speels met o.a. Portugese tegels aangekleed. Op de verdieping zijn 3 slaapkamers en een werkhoek te vinden. Een vlizotrap geeft toegang tot een praktische opbergzolder.

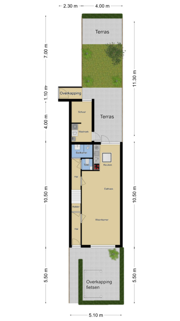
Ben je een tuinliefhebber, dan zal je deze besloten stadstuin zeker aanspreken. De tuin is met meer dan 11 meter verrassend diep en heeft een groen en kleurrijk karakter. Er is een stenen schuur aangebouwd alsmede een overkapping bij de achterom. De tuin is goed toegankelijk voor fietsen via een afgesloten achterom. Ook is er in de voortuin een overkapping (fietsenstalling) geplaatst. Parkeren kun je hier pal voor de deur (vrij parkeren) terwijl je hier op loopafstand van de binnenstad, gezellige horeca, het Modekwartier en stadsparken woont.

Quote van de makelaar: “Wat een leuke woning is dit. Zoek je het stadse karakter waarbij je in de ochtend wordt gewekt door de vogeltjes, dan mag je deze woning niet missen. Deze woning staat er opvallend goed onderhouden bij terwijl er ook nog eens serieus is geïnvesteerd in duurzaamheid. Hou je van deze woonsfeer, dan is de kans groot dat je verliefd de deur uitloopt…”

VERGROTE WOONKAMER
Met meer dan 30m2 aan woonoppervlak in de woonkamer, kun je met een jong gezin prima uit de voeten. Doordat de keuken naar de aanbouw is verplaatst, is de woonkamer ook groter geworden. Hierdoor is er meer dan voldoende ruimte voor een lekkere hoekbank met fauteuil en een 6-persoons eettafel. De houten vloer draagt bij aan een warme woonsfeer terwijl het grote raam in de voorgevel voor een prettige lichtinval zorgt. Overigens zijn er door de woning heen meerdere kozijnen vervangen (met HR++ beglazing) hetgeen het wooncomfort verder versterkt. Denk daarbij ook aan het draai/kiepraam waardoor je praktisch kunt ventileren.

KEUKEN IN DE AANBOUW
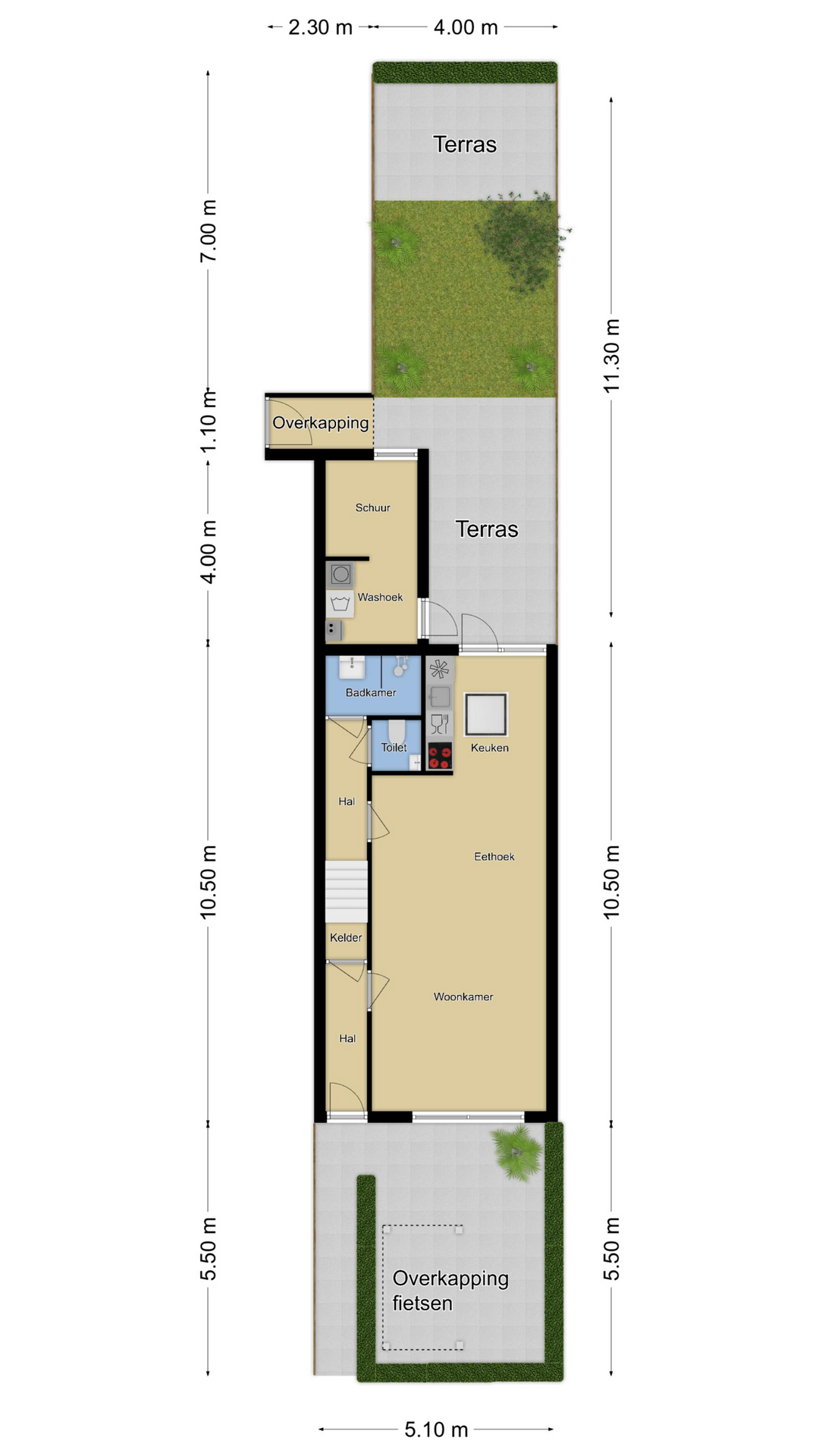
De keuken is aan de achterzijde gelegen en daarmee tuingericht. Een tuindeur biedt daarbij direct toegang tot het buitenterras terwijl een lichtkoepel in het plafond het ruimtelijke gevoel versterkt. De keukenopstelling is éénvoudig te noemen, maar is wel voorzien van diverse inbouwapparatuur. Daarbij mag je denken aan een koelkast, een fornuis v.v. gaskookplaat en een oven. Boven het fornuis is een afzuiger geplaatst. De aanwezige vaatwasser gaat mee.

Mocht je uiteindelijk kiezen voor een geheel eigen opstelling, dan biedt de ruimte veel potentie voor een uitgebreide keukenopstelling. De keuken heeft een aangename breedte waardoor je aan beide zijden een opstelling kwijt kunt, bijvoorbeeld aan de ene zijde het aanrecht met er tegen over een hoge kastenwand met ruimte voor inbouwapparatuur en een uitgebreid servies.

BADKAMER & TOILET
Het leuke van authentieke, vóóroorlogse woningen is, is dat ze niet standaard zijn (dit in tegenstelling tot nieuwbouwwoningen). Ook deze woning heeft een speelse, verrassende indeling waarbij de badkamer een plekje op de begane grond heeft gekregen. Deze is te bereiken via de 2e hal waarbij het toilet en de badkamer naast elkaar zijn geplaatst.

De badkamer is niet groot, maar wel praktisch ingedeeld met een comfortabele inloopdouche en een breed wastafelmeubel. Het laatste is stijlvol gekozen met een waskom op een robuust houten onderstel en een kraan die fraai uit de muur komt. Een handdoekradiator maakt de badkamer compleet. Hetgeen gelijk in het oog springt zijn de frisse kleurstellingen van onder meer de Portugese vloertegels. Deze tegels vinden we ook terug op het aparte toilet die in dezelfde stijl is afgewerkt. Het toilet is als een zwevend wandcloset geplaatst en er is een fonteintje bijgeplaatst.

1e VERDIEPING
Via een afgesloten trapopgang en sierlijke ‘traploper’ bereiken we de 1e verdieping. Deze woonlaag is ingedeeld met een overloop, 3 slaapkamers en een werkhoek met veel kast- en opbergruimte. Leuk detail zijn de originele 4-vlaks paneeldeuren die nog aanwezig zijn. Ook is het traphekwerk op de overloop nog bewaard gebleven.

De slaapkamers zijn respectievelijk 11m2, 8m2 en 4m2 groot. Rechte muren zorgen ervoor dat je de kamers praktisch kunt inrichten. Op de grootste slaapkamer kun je namelijk prima een 2-persoons bed en een linnenkast kwijt. De ramen zijn al eens vervangen door HR+ beglazing en zorgen voor een stukje comfort. En werk je regelmatig vanuit huis, dan is het goed om te weten dat er nog een hoekje over is om een bureau te plaatsen. Je hoeft hiervoor dus geen slaapkamer op te offeren.

ZOLDERVLIERING
Een uitschuifbare vlizotrap geeft toegang tot de zoldervliering. Dit is een handige ruimte om erbij te hebben omdat je er nog verrassend veel (seizoen)spullen kunt opbergen. De nokhoogte ligt op ongeveer 1,6 meter waardoor je er gebukt zou kunnen lopen. Ook is er verlichting aangebracht.

SCHUUR & WASRUIMTE
Aan de achterzijde van de woning vinden we een aangebouwde, stenen schuur (8m2). Dit is niet zomaar een schuur aangezien deze is opgedeeld in een wasruimte en een berging. In het eerste gedeelte kun je zowel de wasmachine als de wasdroger (naast elkaar) aansluiten. Tevens is hier in 2016 de CV-ketel geïnstalleerd. Het is dan ook fijn dat er een raam aanwezig is die voor het nodige daglicht zorgt. In het 2e gedeelte kun je bijvoorbeeld (tuin)gereedschap en zitkussens opbergen.

IDYLLISCHE STADSTUIN
Een van de grote pluspunten van deze woning is de achtertuin. Wanneer je vanuit de keuken de tuin inloopt hoeven we je niet meer te vertellen waarom. Voor stadse begrippen is deze achtertuin verrassend diep (ca. 12 meter) met achterin de tuin een hoge muur. Hier kom je in een groene oase terecht met onder meer een gazon omgeven door bloemen, verschillende soorten planten en een appelboom. De tuin ademt rust en geeft een vrij gevoel omdat er nauwelijks tot geen inkijk is. Er is zowel voor- als achteraan een terras aangelegd waar je een leuke tuinset kwijt kunt. En niet te vergeten de poort (achterom) met ervoor een kleine overkapping waardoor de tuin een goede ontsluiting heeft voor fietsen en/of het afvoeren van snoei-afval.

LEVENDIG KLARENDAL
Arnhem-Noord heeft veel karakteristieke woonwijken, maar de meest bijzondere is misschien toch wel Klarendal. Deze wijk heeft vele gezichten en ligt gunstig ten opzichte van het stadscentrum en de groene natuur waaronder verschillende parken (Klarenbeek, Angerenstein en Sonsbeek), bossen en de Veluwezoom die Arnhem te bieden heeft. In de wijk is geen straat ‘vlak’ en dat geldt ook zeker voor de St. Janskerkstraat. Vanuit de woning rol je met de fiets zonder te trappen het centrum in. Maar ook in de wijk vind je veel gezelligheid met leuke winkeltjes, cafeetjes en andere horecagelegenheden. Ook zijn er meerdere supermarkten in de nabijheid gevestigd. Klarendal is mede bekend vanwege het ‘Modekwartier’ met kleinschalige winkeltjes en bedrijfsruimtes op het gebied van mode en design.
Ben je benieuwd naar deze wijk? Ga er dan eens rondrijden en laat je verrassen door de gemoedelijke sfeer en haar eigentijdse karakter.

INDELING
Begane grond:
Hal/entree
Woonkamer
Open keuken in de aanbouw, voorzien van inbouwapparatuur en met tuindeur
Gang met toilet en trapopgang
Badkamer met inloopdouche en wastafelmeubel.
1e Verdieping:
Overloop
Slaapkamer 1
Slaapkamer 2
Slaapkamer 3
Werkhoek (afsluitbaar).
Zolderverdieping:
Te bereiken middels een vlizotrap (op één van de slaapkamers)
Verrassend veel opbergmogelijkheden (nokhoogte 1,6 meter).

BIJZONDERHEDEN
Karakteristieke jaren ’30 woning met authentiek karakter
Aanbouw zorgt voor veel extra woonruimte
Houten keuken die naar eigen wens op kleur te brengen is
Diverse inbouwapparatuur waaronder een vaatwasser
Lichtkoepel in keuken zorgt voor extra daglicht
Moderne badkamer en toilet (2018) met kleurrijke uitstraling
Originele paneeldeuren zijn behouden gebleven
Stijlvolle trapopgang met ‘traploper’
Nieuwe, uitgebreide groepenkast (2025) met aardlekschakelaars
CV-ketel: Remeha Tzerra HR-combi, geplaatst 2016
Beglazing vervangen door HR+ en HR++ beglazing
Spouwmuren zijn nageïsoleerd
Dakisolatie aanwezig
Platte dak aanbouw in december 2024 geïsoleerd en v.v. nieuwe dakbedekking
Zonnepanelen (12x) welke in mei 2023 zijn geplaatst (ca. 3.750 kWh per jaar)
Energielabel C
Slaapkamers aan de voorzijde v.v. een rolluik
Heerlijke stadstuin met een weelderig en groen karakter
Opvallend veel vrijheid en privacy (geen achterburen)
Door de mooie dieptemaat al vroeg in het voorjaar veel zonuren
Praktische achterom met afsluitbaar pad
Overkapping in de voortuin t.b.v. containers en het stallen van fietsen
Vrij parkeren pal voor de deur
Gemoedelijke woonomgeving
Alle stadse voorzieningen, horeca, winkels, scholen en natuur binnen handbereik.

LET OP:
De woning heeft officieel een energielabel C, maar op basis van het SEWA Woonplan (Subsidieregeling Eigen Woning Aanpak) zou de woning in de huidige staat op een energielabel B moeten uitkomen (rapport is bij ons op te vragen).

TIP:
Wilt u meer te weten komen over deze woning?
Beleef dan ook eens de aanvullende producten die wij standaard bij al onze woningen aan de Funda-presentatie koppelen:
– Professionele woonvideo
– Virtuele tour door de woning
– Interactieve plattegronden met tuinindeling.

DISCLAMER
Deze informatie is door ons met de nodige zorgvuldigheid samengesteld. Onzerzijds wordt echter geen enkele aansprakelijkheid aanvaard voor enige onvolledigheid, onjuistheid of anderszins, dan wel de gevolgen daarvan. Alle opgegeven maten en oppervlakten zijn indicatief. Van toepassing zijn de NVM-voorwaarden.

+ Lees meer
Kenmerken
Stel een vraag
Locatie

    Gratis waardebepaling van uw woning