ZETTENWeegbree 10

Vraagprijs €650.000,- k.k.
Verkocht
KENMERKEN
Woonhuissoort
Eengezinswoning
Woonhuistype
2-onder-1 kapwoning
Bouwjaar
2022
Energieklasse
A pp
LOCATIE
Provincie
GELDERLAND
Plaats
ZETTEN
Postcode
6671 JD
Straat
Weegbree 10
  • Omschrijving
  • Foto's
  • Kenmerken
  • Stel een vraag
  • Locatie
Omschrijving

ZETTEN
Weegbree 10

Wauw, dit moet je zien!
Een uitgebouwde, zeer hoogwaardig en trendy afgewerkte 2-ONDER-1-KAPWONING van pas 2 jaar oud die is voorzien van de nieuwste verduurzamingsinstallaties zoals een warmtepomp, vloerverwarming, een warmteterugwin (WTW) en 23 zonnepanelen. Deze volumineuze woning heeft maar liefst ca. 166m2 woonoppervlak en 670m3 inhoud en bestaat uit 3 volwaardige woonlagen en een INPANDIGE GARAGE (19m2).

Deze stijlvolle en instapklare gezinswoning is van alle luxe en comfort voorzien zoals een uitgebouwde living met dubbele terrasdeuren, een exclusieve eilandkeuken met eethoek, 3 slaapkamers op de verdieping waaronder een masterbedroom met walk-in-closet (ter overname aangeboden), een prachtige badkamer met o.a. een ligbad én inloopdouche en een multifunctionele 2e verdieping met hoge nok en de mogelijkheid tot het creëren van meerdere (slaap)kamers.

Net als de woning ziet ook de achtertuin er nog uit als ‘nieuw’ waarbij een strakke tuinaanleg voor een onderhoudsvriendelijk karakter zorgt. Groot formaat keramische tegels, kunstgras, een drainafvoer, (spot)verlichting, groene borders met o.a. olijfboompjes en degelijke schuttingen ‘kleuren’ de tuin waarbij ook de vrije ligging direct opvalt. De achterburen wonen relatief ver weg hetgeen de tuin een vrij gevoel geeft (zeker voor nieuwbouwbegrippen). Vóór de garage kun je comfortabel op de eigen oprit parkeren.

Deze bezienswaardige woning is in de nog zeer jonge woonwijk ‘Op Zuid in Zetten’ gelegen. Deze speels opgezette wijk is kindvriendelijk en autoluw te noemen waarbij werkelijk alle (winkel)voorzieningen, scholen, zelfs een middelbare school en een treinstation op loopafstand zijn gelegen. Binnen 2 tot 3 autominuten begeef je je op de snelweg A15 (en A50).

Quote van de makelaar: “Wat een plaatje is dit… Je hoeft maar naar de foto’s te kijken en je ziet meteen dat het hier om een uiterst smaakvol afgewerkte gezinswoning gaat waarbij nergens op bezuinigd is. De zeer uitgebreide eilandkeuken, de modieuze badkamer met fraai sanitair, de prachtige visgraat PVC-vloer en ga zo maar door. Hier komen superlatieven te kort. Deze woning moet je gewoon gezien hebben om op waarde te kunnen schatten. Let op: kijken = verliefd worden!”

INSTAPKLARE NIEUWBOUW
Dit is een unieke kans: Een woning van net 2 jaar oud die hoogwaardig, neutraal en luxe is afgewerkt. Hier stap je werkelijk in een gespreid bed. Deze gezinswoning is volledig instapklaar. De huidige eigenaren hebben prachtige stijlelementen aan de woning toegevoegd die je vaak alleen maar in de showroom van een woonwinkel, een magazine of bij woonprogramma’s op TV voorbij ziet komen. Kortom, hier is het direct genieten van de luxe en het comfort dat de woning zo compleet maakt.

Tijdens de bouw is er gekozen voor een aanbouw waardoor de woonkamer gelijk de maximale grootte heeft gekregen. Hierdoor is de inpandige dieptemaat van de woning verlengd tot maar liefst 13 (!) meter. Bovendien is door deze aanbouw de garage van binnenuit toegankelijk geworden.

Pak jij deze kans?

ENERGIEZUINIG & COMFORTABEL
Vandaag de dag moeten nieuwbouwwoningen voldoen aan de eisen voor Bijna EnergieNeutraal Gebouw (BENG-norm). Deze woning is geïsoleerd met duurzame isolatievoorzieningen waaronder HR++ beglazing en is voorzien van maar liefst 23 zonnepanelen. Afhankelijk van gebruik en gezinssamenstelling kun je hier de energielasten nihil houden. Als eerste heeft de woning géén gasaansluiting en gaat alles elektrisch. Ten tweede heeft de woning géén CV-ketel omdat de woning een eigen warmtepomp heeft. Ook het ventilatiesysteem (WTW) draagt bij aan een comfortabel woonklimaat. De woning heeft geen enkele radiator aangezien de begane grond en de 1e verdieping voorzien zijn van vloerverwarming.

Noemenswaardig zijn de deuren en plafonds die comfort het laatste Bouwbesluit mooi hoog zijn. Dit geeft een ruimtelijk gevoel, net zoals de hoge raampartijen die tot aan de vloer doorlopen en daardoor voor veel lichtinval zorgen. Opvallend is dat alle binnendeuren zijn vervangen door designdeuren. Met name de plafondhoge, zwartstalen deur tussen hal en woonkamer zorgt voor een stijlvol element. Wanden zijn afgewerkt met ‘glad’ renovliesbehang, plafonds zijn gestuct, en de vloeren zijn strak en verzorgd afgewerkt. Ook zal je de akoestische wandpanelen direct opvallen die zowel in de woonkamer als op de masterbedroom voor een warme woonsfeer zorgen.

LIVING
De woonkamer is aan de achterzijde gelegen en is daardoor tuingericht. Door de aanbouw is er flink meer extra leefruimte ontstaan waardoor je volop inrichtingsmogelijkheden hebt. Je hoeft hier niet te twijfelen of dat die grote hoekbank waar je altijd al van hebt gedroomd wel past. Er zijn smaakvolle keuzes gemaakt in de afwerking zoals de visgraat PVC-vloer, de akoestische panelen in de wandafwerking en het zwevende wandmeubel (allen ter overname aangeboden) die door maatwerk om een koof is gebouwd. Het zijn de kleine details die we als makelaar niet vaak tegenkomen en deze woning juist zo bijzonder maken. Verder zorgen grote raampartijen tot aan de vloer alsmede de dubbele terrasdeuren voor een mooi gezichtsveld in de achtertuin.

EXCLUSIEVE EILANDKEUKEN
Een echte eye-catcher is toch wel de keuken waarbij een schiereiland en een hoge kastenwand voor een speels en stijlvolle uitstraling zorgen. Met name de ‘ingestucte’ ombouw van de kastenwand met erboven een fraai verlichte nis ten behoeve van accessoires geeft de keuken een robuust karakter. Het zijn vaak de details die de keuken een eigen ‘touch’ geven. Zo ook de zwartmatte, greeploze fronten en het werkblad van composiet (betonlook) zorgen voor een eigentijdse uitstraling die smaakvol op elkaar zijn afgestemd.

Er is gekozen voor A-merk apparatuur zoals een Bora inductie kookplaat (verzonken in het werkblad) met geïntegreerd afzuigsysteem, een vaatwasser, een hoge koelkast en niet één maar twee combi-ovens met magnetronfunctie, allen van Miele. De gootsteen is weer in zwart gekozen en is naadloos onder het aanrechtblad aangebracht. Deze wordt vergezeld door een Quooker (kokend waterkraan) en een separaat zeeppompje, beiden trendy uitgevoerd in verouderd messing. Verder bestaat de keuken uit veel kastruimte waaronder brede ladekorven.

1e VERDIEPING
De eerste verdieping is ingedeeld met 3 slaapkamers en de badkamer. De slaapkamers zijn respectievelijk 22m2, 11m2 en 9m2 groot en zijn door de rechte muren en vloerverwarming (geen radiatoren) optimaal in te richten. De grootste slaapkamer is royaal te noemen en is over de volle breedte gelegen. Hier is dankbaar gebruik van gemaakt door er een walk-in-closet te creëren. De kastenwand is daarbij voorzien van dezelfde akoestische wandpanelen als in de woonkamer (kastenwand wordt ter overname aangeboden). Verder is ook deze woonlaag verzorgd afgewerkt met onder meer een mooie, doorlopende PVC-vloer. Goed om te weten: elke kamer heeft een eigen thermostaat waardoor je het klimaat middels de vloerverwarming van de slaapkamers afzonderlijk van elkaar kunt regelen.

COMPLETE BADKAMER
De badkamer is werkelijk de kers op de taart. Wanneer je hier naar binnen loopt, kun je alleen maar enthousiast worden. Verschillende trendy stijlelementen zijn smaakvol op elkaar afgestemd zoals de groot formaat vloer- en wandtegels in aardetinten die speels worden afgewisseld met decor wandtegels die in een visgraatmotief zijn aangebracht (zogenoemde Hongaarse punt). En net als in de keuken zijn ook hier de kranen in messing gekozen en is de deur van de inloopdouche eveneens in zwartstaal uitgevoerd.

De badkamer is compleet ingedeeld met ligbad, een comfortabele inloopdouche met rainshower, een handdouche (beiden uit de muur) en een drainafvoer, een 2-persoons wastafelmeubel met ladekorven en een 2e zwevend wandcloset. Om het af te maken is er gekozen voor een ronde spiegel en nisjes in het tegelwerk waaronder in de douchewand. Praktische zaken zoals een draai/kiepraam (daglicht) en mechanische ventilatie ontbreken niet.

MULTIFUNCTIONELE 2e VERDIEPING
Via een tweede ‘luie’ trapopgang bereiken we de 2e verdieping waar je de volgende verrassing staat te wachten: een royale, multifunctionele leefruimte met een 4 meter hoge nok waar je nog alle invullingen aan kunt geven. Denk daarbij aan 1 of 2 extra slaapkamers en/of een wasruimte, eventueel in combinatie met een grote dakkapel. In de huidige setting kun je de wasmachine en wasdroger naast elkaar plaatsen. Werk je veel vanuit huis dan kun je hier de ideale werkhoek/kamer creëren. Naast dat er al een kopgevelraam aanwezig is, is er ook nog een groot, extra dakvenster geplaatst waardoor er een fijne lichtinval is. Achter de knieschotten vind je nog handige opbergruimte.

BUITENLEVEN
Bij een volwaardige gezinswoning hoort ook een aantrekkelijke achtertuin. De tuin heeft een mooi, vierkant formaat (10m diep en 9,5m breed) waardoor de tuin een ruimtelijk gevoel geeft. Dit komt ook doordat er achter de tuin geen andere woonblokken staan zoals je dat in veel nieuwbouwwijken wel ziet. De achterburen betreffen vrijstaande woonhuizen met grote tuinen waardoor je relatief veel vrijheid geniet.

Net als de woning is ook de tuin super strak en verzorgd aangelegd met onder andere groot formaat keramische terrastegels (60×60) met een speels accent door keramische tegels met ‘houtlook’. Een border met siergrassen, olijfboompjes, een kunstgrasveldje en (deels) hederahagen op de erfgrens zorgen voor het groene karakter. Wat betreft de erfafscheidingen worden de hederahagen afgewisseld door Zweeds rabatschuttingen (zwart) en robuuste palen welke in douglashout zijn uitgevoerd. Ook is er nagedacht over een verlichtingsplan waarbij top-downspots aan de schuttingen en spotverlichting in het terras de tuin sfeervol belicht. Vanaf de bank in de woonkamer kun je op die manier ook op een donkere winteravond van de tuin genieten.

OP ZUID IN ZETTEN
In de afgelopen jaren heeft Zetten er een nieuwe woonwijk bijgekregen. In 2022 is Op Zuid in Zetten fase 1 opgeleverd. Deze jonge, rustige en kindvriendelijke woonwijk heeft een gunstige ligging aan de zuidelijke rand van het dorp. Met één ontsluiting betreft het een autoluwe wijk met uitsluitend bestemmingsverkeer. De wijk is ruim opgezet met aan de zuidzijde veel lucht, groen en water. Verder heeft de wijk een diversiteit van rijwoningen, lagere levensloopbestendige woningen, 2-kappers en vrije bouwkavels waar stijlvolle, vrijstaande huizen op gebouwd zijn.

Je woont hier aan de rand van het dorp met het uitgestrekte Betuwse landschap op steenworp afstand. Aan de buitenrand is een wandelroute aangelegd die rechtstreeks naar het bosrijke Landgoed Hemmen leidt. Dit is erg bijzonder aangezien dit bosrijke en karakteristieke dorp een authentieke, kleinschalige kern heeft, alsmede een kasteeltuin en bosvijver. Je vindt hier uitgestrekte wandelpaden door de bossen, langs het riviertje De Linge en het Betuwse landschap met onder meer haar fruitteelt. Onderweg kom je gezellige horecagelegenheden tegen.

ZETTEN, hét winkeldorp van Nederland!
Zetten, een centraal gelegen dorp in de Gemeente Overbetuwe met ongeveer 5.500 inwoners. Zetten heeft een uitgebreid winkel- en dienstenaanbod en vervult daarmee een streekfunctie. Zetten heeft zelfs van alle dorpen in Nederland het grootste winkelaanbod gerelateerd aan het aantal inwoners. Bekende winkelketens als Kruidvat en Hema worden aan het dorpsplein afgewisseld door ambachtelijke winkeltjes waaronder een slager, een bakkerij, een kaasboer en een juwelier. Ook aan supermarkten is er geen gebrek aangezien u kunt kiezen uit de Albert Heijn, Jumbo en Aldi.

In Zetten vinden we 3 basisscholen terug alsmede een middelbare school met alle leerniveaus (van basis tot en met VWO). En voor tieners niet onbelangrijk: deze school (HPC) is letterlijk op loopafstand gelegen. Er is een rijk verenigingsleven waarbij de omliggende dorpen elkaar versterken. Van voetbal- en tennis/padelclub tot aan een turn- en volleybalvereniging. Ook zijn er 2 sportscholen (waarvan één 24 uur geopend is) en een dansschool. Zetten is werkelijk van alle markten thuis.

CENTRAAL GELEGEN
Of je nu in de stad werkt of op één van de bedrijvenparken in de nabij gelegen dorpen, het is altijd heerlijk thuis komen tussen de rivieren de Rijn en de Waal. Het dorp is gelegen in de driehoeksverhouding Arnhem – Nijmegen – Tiel en heeft daardoor een goede ontsluiting. We vinden Zetten terug in de oksel van knooppunt Valburg waar de A15 en de A50 elkaar kruisen. Hierdoor ben je binnen 15 minuten in grote plaatsen als Beuningen, Elst, Wageningen en de grote steden Arnhem, Nijmegen en Tiel. Maar ook plaatsen als Oss, Ede of Apeldoorn liggen maar op een half uur rijden.
Kortom, wij laten je graag kennis maken met het veelzijdige dorp Zetten!

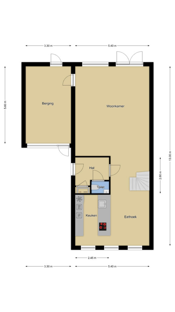
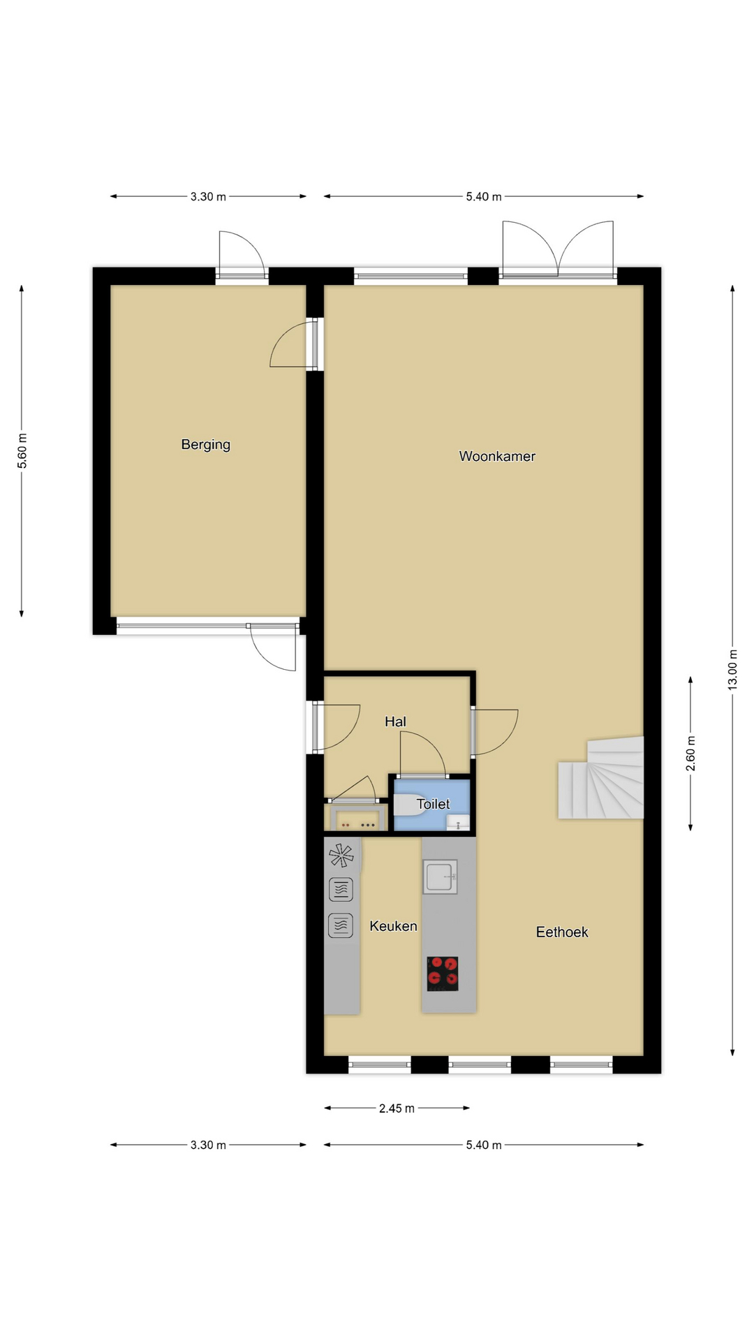
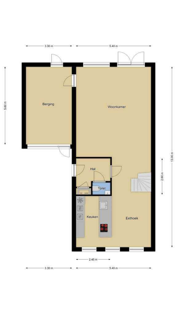
INDELING
Begane grond:
Hal/entree met uitgebreide meterkast en modern toilet
Uitgebouwde woonkamer met dubbele terrasdeuren
Open keuken met schiereiland en hoge kastenwand, voorzien van alle wenselijke inbouwapparatuur
Open trapopgang naar de…
1e Verdieping:
Ruime overloop met 2e trapopgang
Masterbedroom met walk-in-closet
Slaapkamer 2
Slaapkamer 3
Badkamer met ligbad, inloopdouche, 2-persoons wastafelmeubel en 2e toilet.
Zolderverdieping:
Multifunctionele, 2e verdieping met hoge nok en extra (groot) dakvenster
Witgoedaansluitingen (wasmachine en wasdroger)
Warmtepomp en WTW-unit (ventilatie)
Knieschot opbergruimte.

PLUSPUNTEN VOOR DE KOPER
Unieke kans: een luxe en complete 2-kapper van maar 2 jaar oud
Ideale gezinswoning die met aanbouw bijna 14 meter diep is.
Zeer energiezuinig, energielabel A++
Vloerverwarming op zowel de begane grond als op de 1e verdieping
Moderne PVC-vloeren met op de begane grond een visgraatmotief
Raampartijen tot aan de vloer (voor- en achtergevel)
Dubbele terrasdeuren
Prachtige eilandkeuken met alles erop-en-eraan waaronder een Quooker
Masterbedroom met walk-in-closet (kastenwand is ter overname aangeboden)
Stijlvolle binnendeuren
Complete badkamer met trendy sanitair en aankleding
Multifunctionele 2e verdieping met volop perspectief voor het creëren van extra (slaap)kamers
Géén gasaansluiting
23 Zonnepanelen met een jaaropbrengst van ca. 5.600 kWh
Ramen voorzien van draai/kiepsysteem met inzethorren
Zeer goed onderhouden
Zinken hemelwaterafvoeren
Heerlijke, vrij gelegen achtertuin met een onderhoudsarm karakter
Tuin aangelegd met mooie materialen en verlichtingsplan
Comfortabele oprit (mogelijkheid tot plaatsen laadpaal)
Rustige, autoluwe en kindvriendelijke straat
Alle (winkel)voorzieningen, scholen en treinstation binnen handbereik
Gelegen in de jongste woonwijk van Zetten.

DISCLAMER
Deze informatie is door ons met de nodige zorgvuldigheid samengesteld. Onzerzijds wordt echter geen enkele aansprakelijkheid aanvaard voor enige onvolledigheid, onjuistheid of anderszins, dan wel de gevolgen daarvan. Alle opgegeven maten en oppervlakten zijn indicatief. Van toepassing zijn de NVM-voorwaarden.

+ Lees meer
Kenmerken
Stel een vraag
Locatie

    Gratis waardebepaling van uw woning